Инженер по специальности "Теплогазоснабжение и вентиляция"Основная специализация - тепломеханические решения ИТП/ЦТП (схемы, чертежи, 3D-модели, спецификации. Как стадия П, так и стадия Р).
Твердотопливная котельная (технологические трубопроводы)
Узел совместного приготовления воды для отопления и ГВС
Узел подготовки горячей воды с промежуточным контуром
Узел ввода тепловой сети
Центральный тепловой пункт
Узел приготовления горячей воды для ГВС
Узел подготовки горячей воды для нужд ГВС
Установка промывки пластинчатых теплообменников
Паро-конденсатный тепловой пункт
Модуль совместного приготовления воды для нужд ГВС и отопления
Модуль подготовки воды для нужд ГВС
ОВ ЦТП
Общие данные. ОВ ЦТП
Пример спецификации котельной
План трубопроводов. Твердотопливная котельная
Тепловая схема котельной 54 МВт
Вид трубопроводов. Центральный тепловой пункт
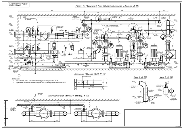
Чертеж трубопроводной обвязки в составе проекта ТМ
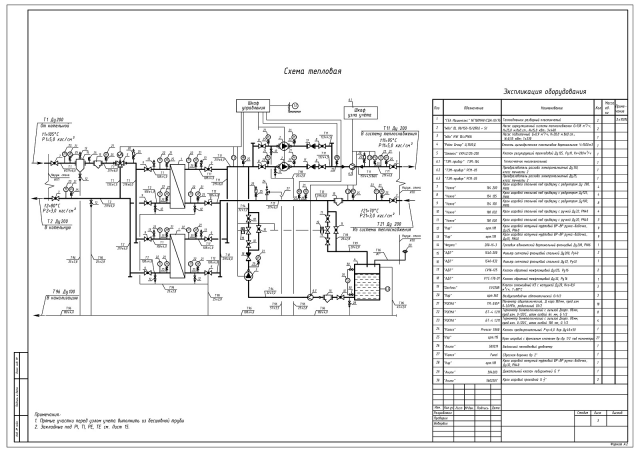
Тепловая схема ЦТП
Обвязка теплообменного оборудования