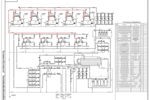
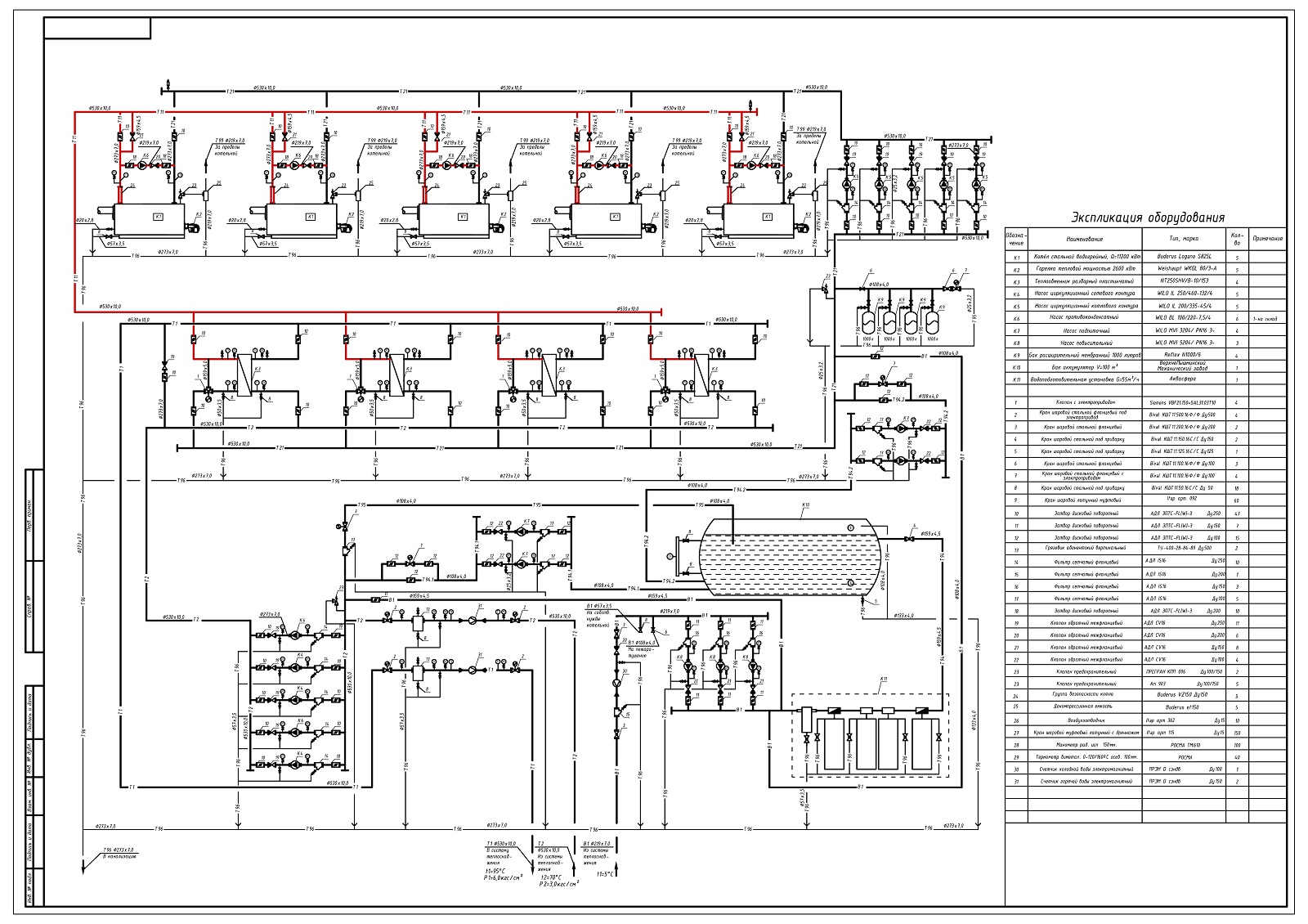
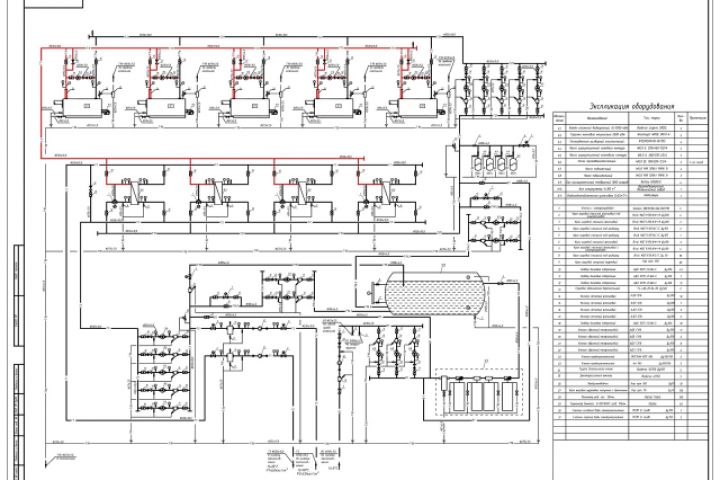
Тепловая схема котельной 54 МВт
Для полной функциональности этого сайта необходимо включить JavaScript.
Новосибирск
На сайте с: 22.08.2017
Лаврентий Кияница
lavrentij
Рейтинг: 72
не верифицирован
Всего отзывов:
0
Работ в портфолио:
22
Типовых услуг:
0
Работ на продажу:
0
Был на сайте:
2017-11-23 в 07:22
+79030493185
inbox
Вконтакте
Предложить работу
Добавить в избранное
Добавить рекомендацию
Пожаловаться
Инженерия
77
0
Тепловая схема котельной 54 МВт
Используемые навыки:
Теплоснабжение/Отопление/Вентиляция
Описание
Решение
Результат
Соавторы
Презентация проекта
Примеры реализации
Описание
Презентация проекта
Оценили проект:
0
×
Оценили проект
×
Авторизация
Для того чтобы оценивать проекты, вам нужно войти на сайт
Другие проекты
Все проекты
Твердотопливная котельная (технологические трубопроводы)
Тепловая схема ЦТП
Модуль подготовки воды для нужд ГВС
FREELANCE.RU
Toggle navigation
Нанять фрилансера
Заказчику
Найти по специализации
Найти по услугам
Провести конкурс
Разместить задание
Другое
Найти работу
Фрилансеру
Найти задание
Присоединиться к команде
Участвовать в конкурсе
Другое
Возможности
Для заказчика
Для фрилансера
Вход
Разместить задание
▲