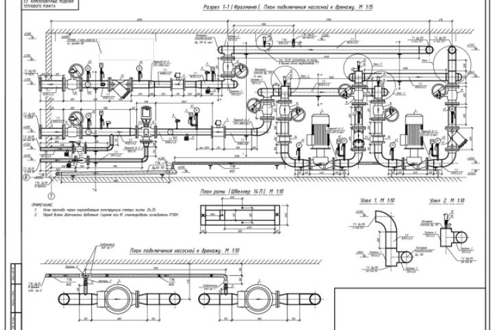
Вид трубопроводов. Центральный тепловой пункт
Для полной функциональности этого сайта необходимо включить JavaScript.
Новосибирск
Лаврентий Кияница
lavrentij
Рейтинг: 72
не верифицирован
Всего отзывов:
0
Работ в портфолио:
22
Типовых услуг:
0
Работ на продажу:
0
Зарегистрирован:
22.08.2017
Был на сайте:
2017-11-23 в 07:22
+79030493185
inbox
Вконтакте
Предложить работу
Добавить в избранное
Добавить рекомендацию
Пожаловаться
Инженерия
32
0
Вид трубопроводов. Центральный тепловой пункт
Используемые навыки:
Теплоснабжение/Отопление/Вентиляция
Описание
Решение
Результат
Соавторы
Презентация проекта
Примеры реализации
Описание
Презентация проекта
Оценили проект:
0
×
Оценили проект
×
Авторизация
Для того чтобы оценивать проекты, вам нужно войти на сайт
Другие проекты
Все проекты
Узел приготовления горячей воды для ГВС
Вид трубопроводов. Центральный тепловой пункт
Установка промывки пластинчатых теплообменников
FREELANCE.RU
Toggle navigation
Нанять фрилансера
Заказчику
Каталог фрилансеров
Каталог студий
Каталог услуг
Каталог работ
Виртуальный HR
Умный поиск
Провести конкурс
Разместить задание
Найти работу
Фрилансеру
Найти задание
Присоединиться к команде
Участвовать в конкурсе
Предложить услугу
Вход
Разместить задание
▲