Нет проблем , есть задача

Светлана Готовская svetlanagot

Рейтинг: 70
не верифицирован
Всего отзывов: 0
  • Работ в портфолио: 10
  • Типовых услуг: 0
  • Работ на продажу: 0
  • Возраст: 41 год
  • Зарегистрирован: 31.03.2023
Была на сайте:

Обо мне

С детства мне нравилось создавать что-то новое и красивое, даже если это из маминого платья и папиных джинсов. Может именно потому я выбрала профессию архитектора Именно в этой сфере, воплощая мечты в реальность, получаешь удовольствие.
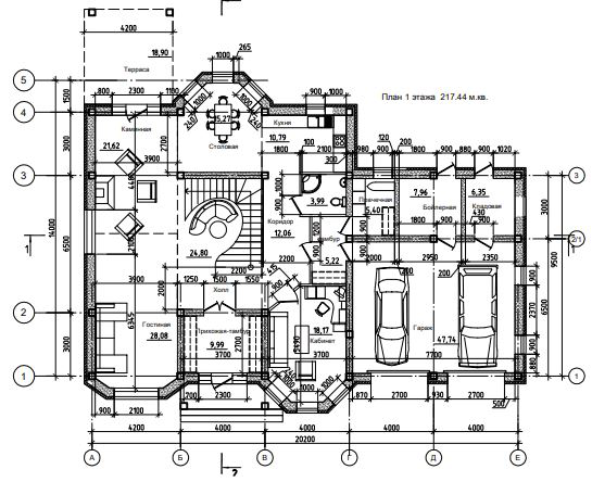
Опыт проектирование зданий и сооружений более 15лет. Большенство работ выполнены совместно с авторским коллективом АО СиПИ.
Аналитический склад ума, пространственное мышление, готовность вести диалог и понимать потребности людей, умение найти и грамотно применить нужную информацию по запросу- это то, чем, по-моему мнению, должен обладать профессиональный архитектор.
Компьютерные навыки : графические программы AllPlan, AutoCad, CorellDraw, SketchUpp.