Нет проблем , есть задача

Светлана Готовская svetlanagot

Рейтинг: 70
не верифицирован
Всего отзывов: 0
  • Работ в портфолио: 10
  • Типовых услуг: 0
  • Работ на продажу: 0
Была на сайте:

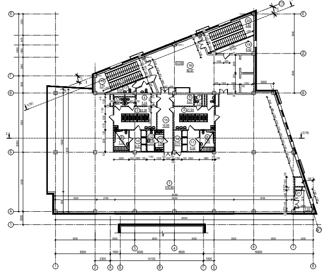
Бизнесс центр АРЕНА

Описание

Бизнес- центр АРЕНА

Задача:
Запроектировать физкультурно-спортивное сооружение в узких рамках существующей застройки, с возможностью универсальной эксплуатации. Пройти экспертизу. Архитектурный контроль и сопровождение строительства на всех этапах.

Результат:
Общая площадь 5754,83 кв.м.
Площадь участка 1522.0 кв.м
Этажность 8
Выполнена проектная и рабочая документация. Получено положительное заключение экспертизы. Планировочные решение и расположение на участке продуманны с учетом технического задания и существующих строительный правил. Облик здания, включающее в себя современные фасадные решения, вписан в существующий внешний вид общей застройки города. Здание эксплуатируется.

Ссылки на примеры реализации

 t.me/svetgot_architect

Презентация проекта

pic4425264.jpg
план 3 эт.PNG

Оценили проект:

0