Нет проблем , есть задача

Светлана Готовская svetlanagot

Рейтинг: 70
не верифицирован
Всего отзывов: 0
  • Работ в портфолио: 10
  • Типовых услуг: 0
  • Работ на продажу: 0
Была на сайте:

Школа в п. Молодежный

Используемые навыки:

Описание

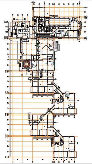
Сельская Общеобразовательная школа в п.Молодежный на 1275 учащихся

Задача: Запроектировать среднюю общеобразовательную школу в поселке Молодежный Иркутского района.
Выполнить проектную и рабочую документацию по проекту в группе архитекторов АO CиПи

Решение:
Школа на 1275 учащихся в п. Молодежный Иркутского муниципального образования. Здание сформировано из семи трехэтажных блоков и одного одноэтажного блока с разделением на две функциональные группы: учебную и общешкольную. Объемно-пространственные решения с выделенными функционально-строительными блоками приняты в проекте в соответствии с современными рекомендациями и тенденциями в проектировании школьных зданий.
Набор помещений, расположение функциональных групп помещений и их взаимосвязь обеспечивают выполнение как традиционных, так и инновационных форм учебно-воспитательного процесса

Ссылки на примеры реализации

 t.me/svetgot_architect

Презентация проекта

pic4425474.jpg
планировка.JPG

Оценили проект:

0