Нет проблем , есть задача

Светлана Готовская svetlanagot

Рейтинг: 70
не верифицирован
Всего отзывов: 0
  • Работ в портфолио: 10
  • Типовых услуг: 0
  • Работ на продажу: 0
Была на сайте:

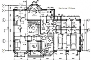
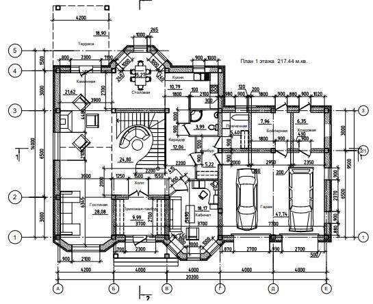
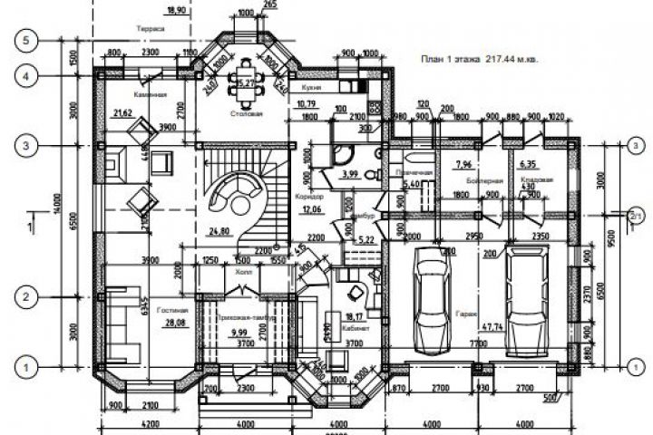
Индивидуальный жилой дом

Описание

Индивидуальные жилые дома

Задача :
Создать дом, в котором будет счастлив ты и твоя семья.

Решение:
Составление технического задания для архитектора. Анализ участка. Варианты планировок и фасадных решений. Согласованный проект (планы, фасады, разрезы, генплан) и выполнение рабочей документации (узлы, спецификации, доработка по согласованному материалу).

Ссылки на примеры реализации

 t.me/svetgot_architect

Презентация проекта

pic4425491.jpg
07.JPG

Оценили проект:

0