Рейтинг: 329
не верифицирован
Всего отзывов: 0
Выполнил заданий: 1
  • Активность:
  • Работ в портфолио: 19
  • Типовых услуг: 0
  • Работ на продажу: 0
  • Возраст: 30 лет
  • Зарегистрирован: 10.05.2022
Был на сайте:

Cпециализации

  • Инженерия 71

Обо мне

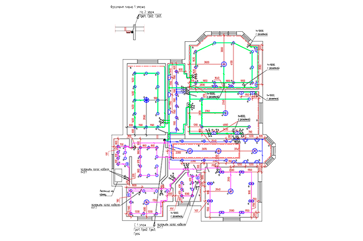
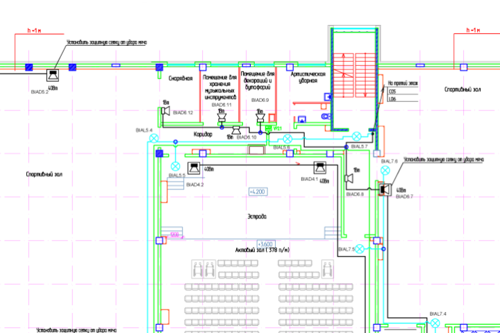
Имею высшее техническое образование по специальности «Электроснабжение», работаю в сфере проектирования.

Занимаюсь разработкой рабочей и проектной документации по системам:
электроснабжения (разделы ЭМ, ЭО, ЭС, ЭОМ);
противопожарной защиты (разделы АПС, СОУЭ);
системам безопасности зданий (разделы СКУД, СОТ, СОТС).

Имею аттестацию МЧС на право проектирования средств обеспечения пожарной безопасности.

Могу внести изменения в существующий проект.

Проекты в портфолио

AI Резюме (ru)