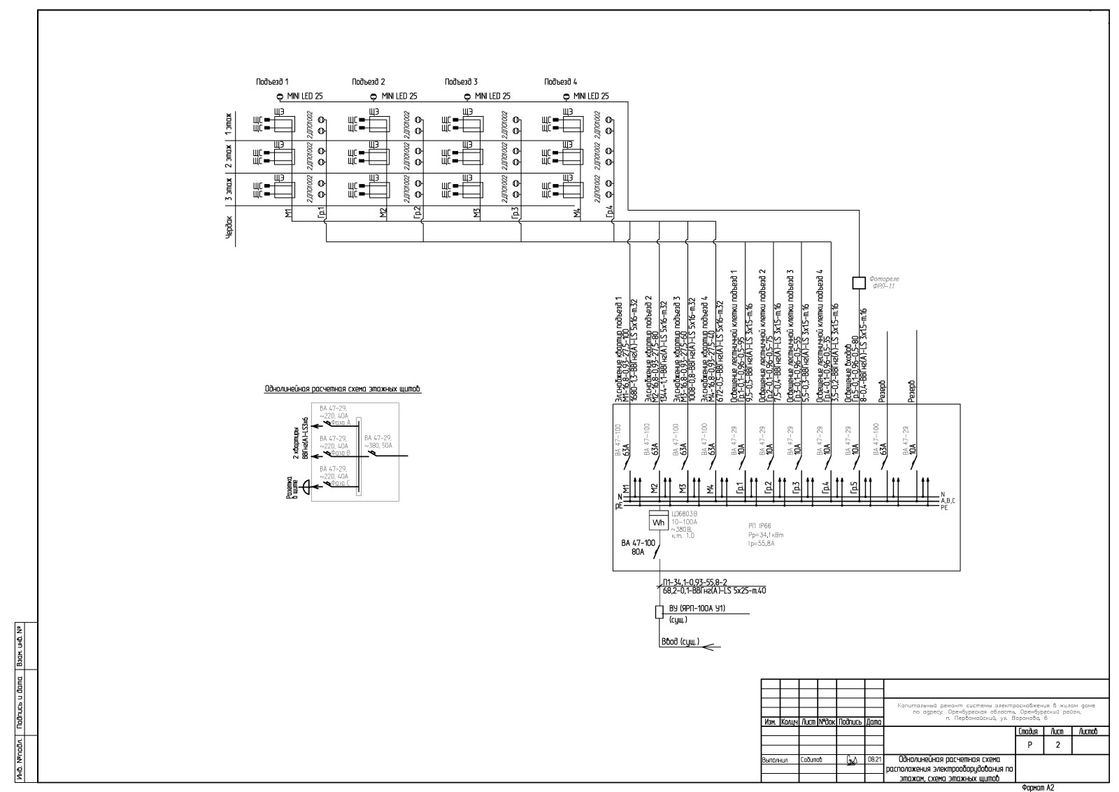
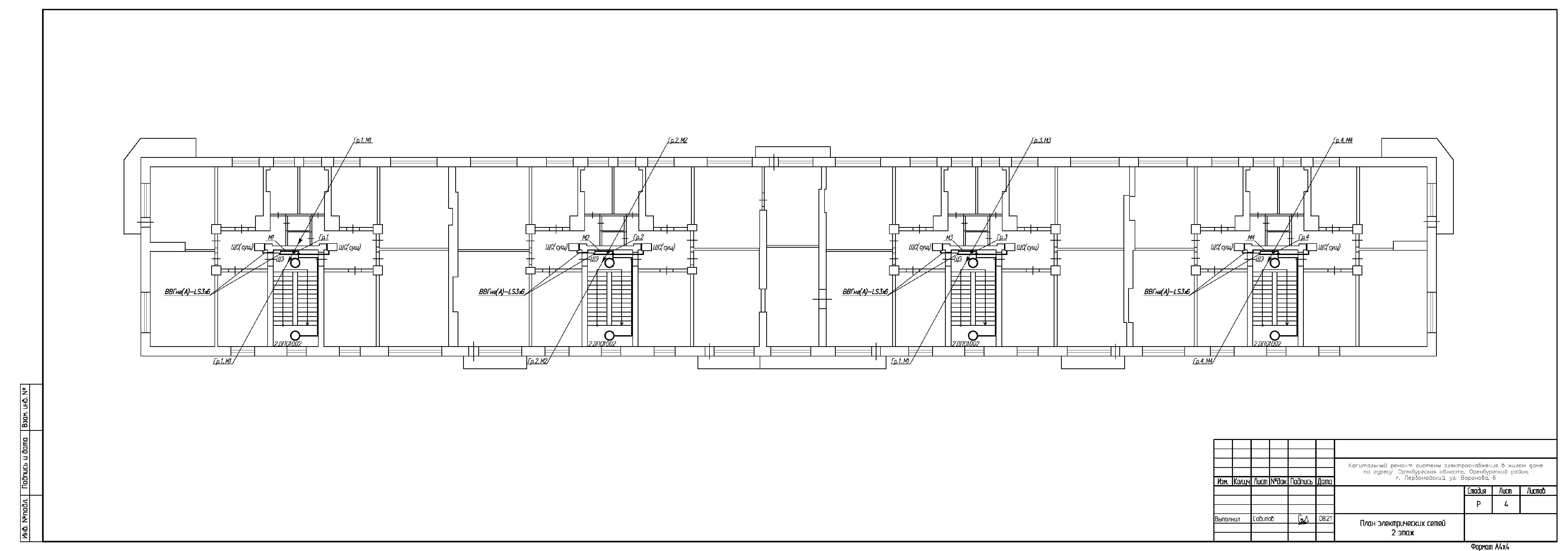
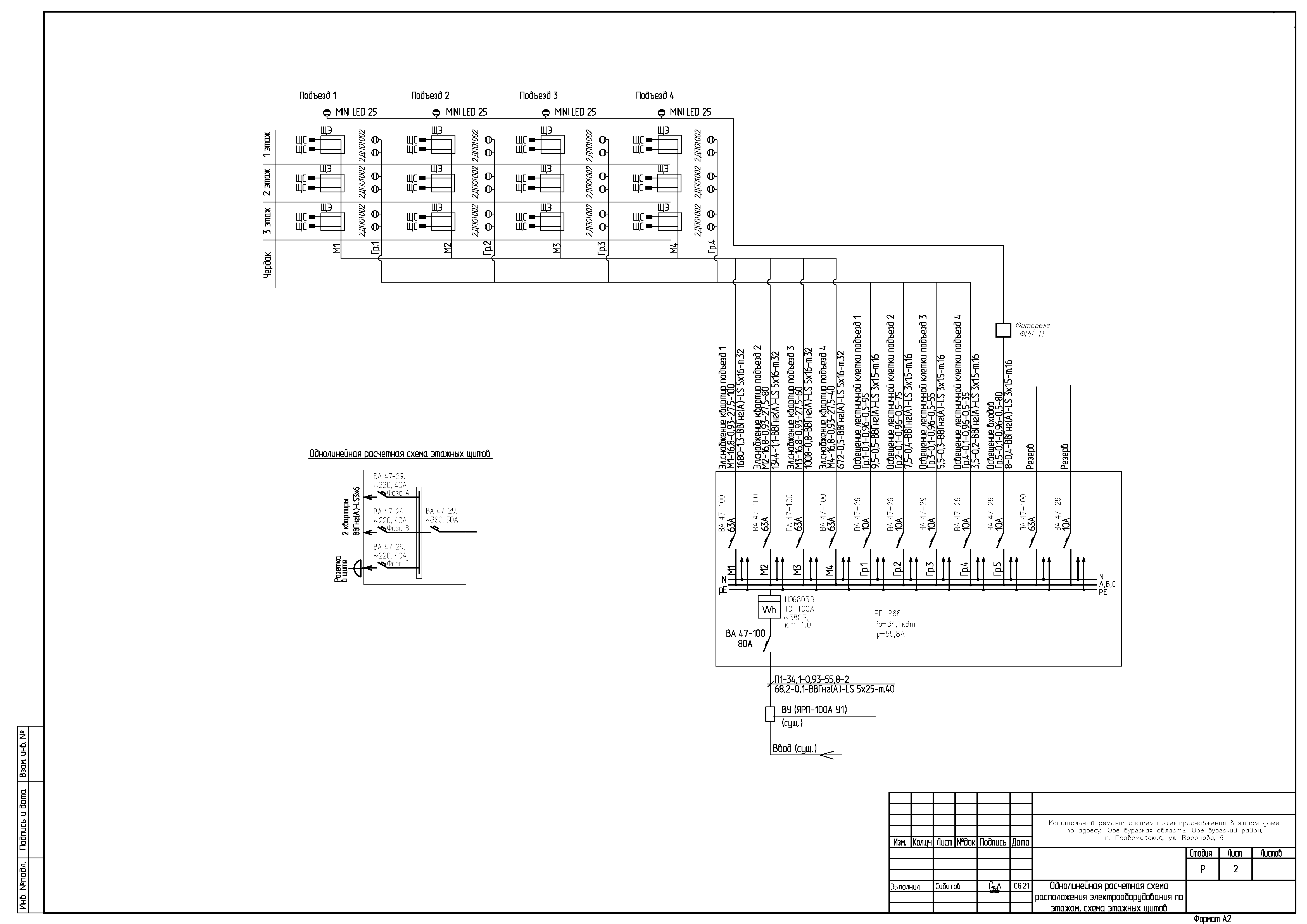
Проект электроснабжения жилого дома
Для полной функциональности этого сайта необходимо включить JavaScript.
Оренбург
29 лет
На сайте с: 10.05.2022
Руслан Сабитов
sabrm
Рейтинг: 329
не верифицирован
Всего отзывов:
0
Выполнил заданий:
1
Нейросаммари
Активность:
Работ в портфолио:
19
Типовых услуг:
0
Работ на продажу:
0
Был на сайте:
2025-02-26 в 19:14
89058485667
inbox
telegram
whatsapp
sabitovrm96@gmail.com
Вконтакте
Предложить работу
Добавить в избранное
Добавить рекомендацию
Пожаловаться
Инженерия
118
0
Проект электроснабжения жилого дома
Используемые навыки:
Электроснабжение
Описание
Решение
Результат
Соавторы
Презентация проекта
Примеры реализации
Описание
Проект ЭОМ
Презентация проекта
Оценили проект:
0
×
Оценили проект
×
Авторизация
Для того чтобы оценивать проекты, вам нужно войти на сайт
Другие проекты
Все проекты
Проект электроснабжения малоэтажной жилой застройки
Проект АПС с использованием адресной радиоканальной подсистемы
Проект АПС, АПДВ детского сада
FREELANCE.RU
Toggle navigation
Нанять фрилансера
Заказчику
Найти по специализации
Найти по услугам
Провести конкурс
Разместить задание
Виртуальный HR
Другое
Найти работу
Фрилансеру
Найти задание
Присоединиться к команде
Участвовать в конкурсе
Предложить услугу
Другое
Возможности
Для заказчика
Для фрилансера
Вход
Разместить задание
▲