Расчёты металлоконструкций, Навес на заказ, расчёты, чертежи!

Дмитрий Игоревич dlym

Рейтинг: 1 352
не верифицирован
Всего отзывов: 0
  • Работ в портфолио: 3
  • Типовых услуг: 3
  • Работ на продажу: 0
Был на сайте:

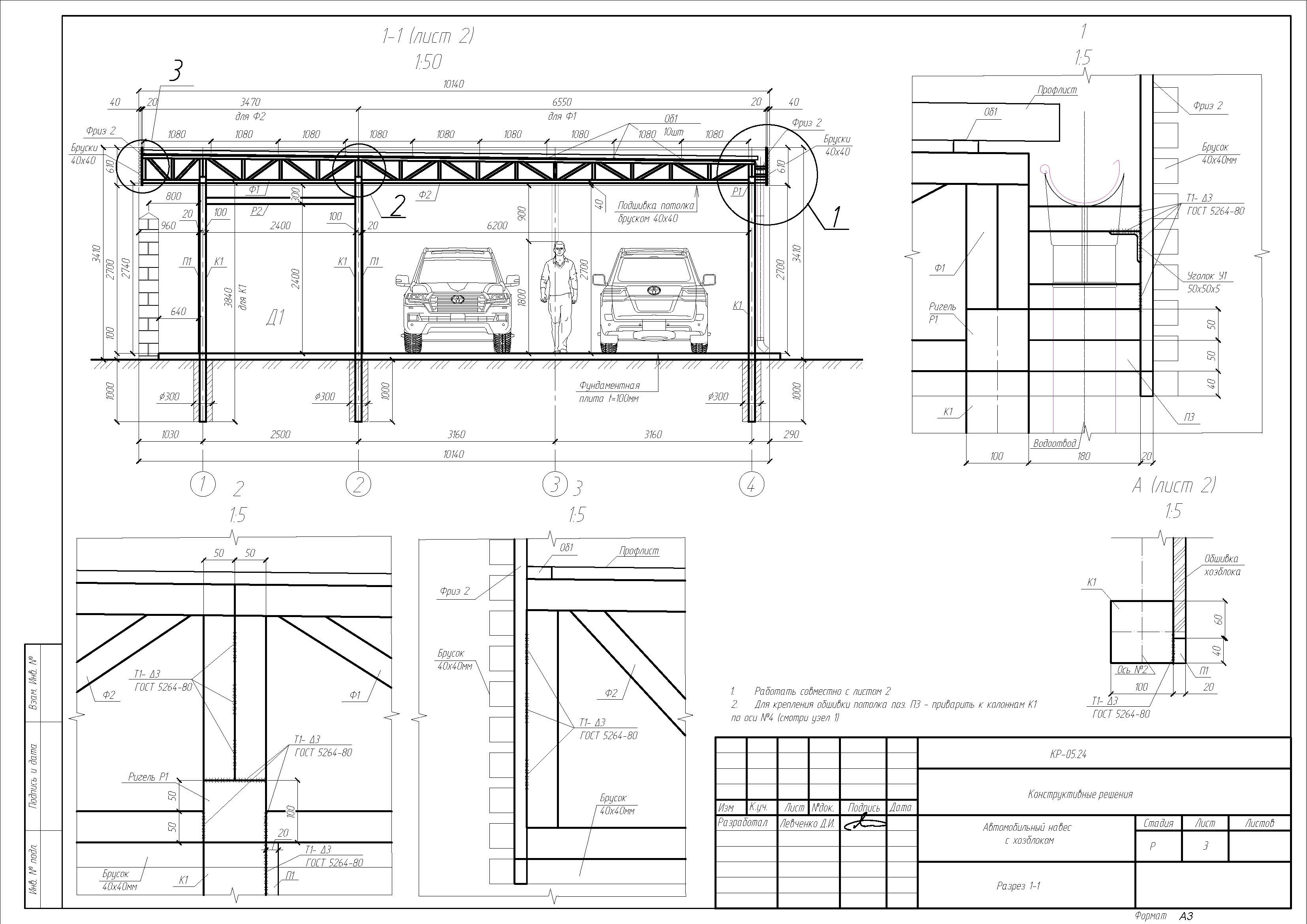
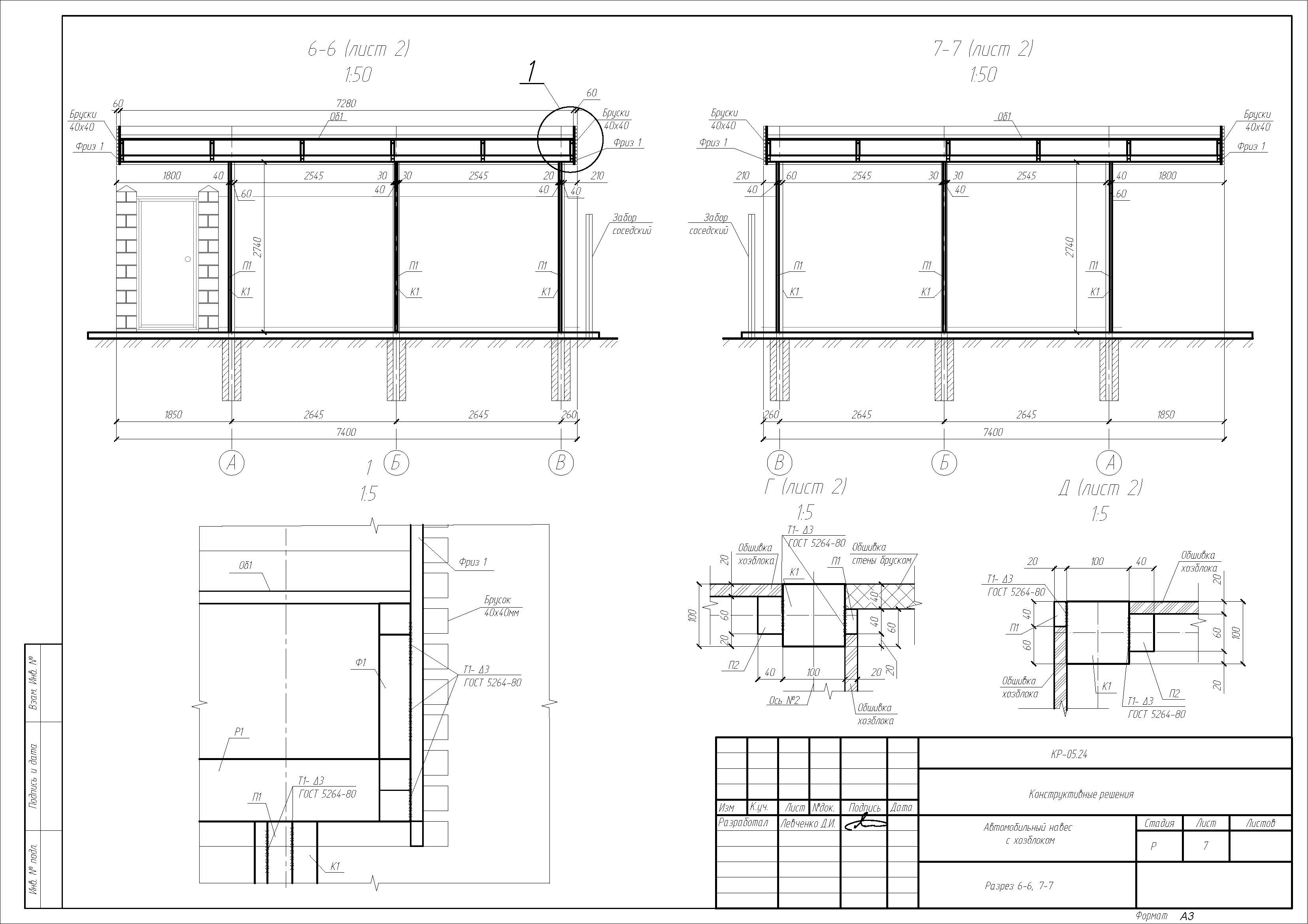
Рабочая документация на Хайтек навес с хозблококм 7,4х10,14м

Описание

Необходимо разработать рабочую документацию на навес с хозблоком в стиле "Хайтек" для строительство данного объекта

Решение

- Определили с заказчиком все недостающие исходные данные для проектирования будущего навеса
- Выполнил визуализацию будущего объекта
- Выполнил расчёты конструкций, подобрал необходимые сечения элементов, предоставил отчёт
- Выполнил подробные чертежи навеса со всеми спецификациями (вплоть до каждого болтика)

Результат

Заказчик получил полный пакет документов "рабочий проект" на навес. После чего проект был реализован в реальной жизни.

Презентация проекта

2.jpg
3.jpg
РД Хайтек навес с хозблококм 7,4х10,14м_Страница_1.jpg
РД Хайтек навес с хозблококм 7,4х10,14м_Страница_2.jpg
РД Хайтек навес с хозблококм 7,4х10,14м_Страница_3.jpg
РД Хайтек навес с хозблококм 7,4х10,14м_Страница_4.jpg
РД Хайтек навес с хозблококм 7,4х10,14м_Страница_5.jpg
РД Хайтек навес с хозблококм 7,4х10,14м_Страница_6.jpg

Оценили проект:

0