Расчёты металлоконструкций, Навес на заказ, расчёты, чертежи!

Дмитрий Игоревич dlym

Рейтинг: 1 352
не верифицирован
Всего отзывов: 0
  • Работ в портфолио: 3
  • Типовых услуг: 3
  • Работ на продажу: 0
Был на сайте:

Описание

Необходимо разработать рабочую документацию на односкатный навес с привязкой к дому для строительство данного объекта

Решение

- Определили с заказчиком все недостающие исходные данные для проектирования будущего навеса
- Выполнил расчёты конструкций, подобрал необходимые сечения элементов, предоставил отчёт
- Выполнил подробные чертежи навеса со всеми спецификациями

Результат

Заказчик получил полный пакет документов "рабочий проект" на навес. После чего проект был успешно реализован на площадке.

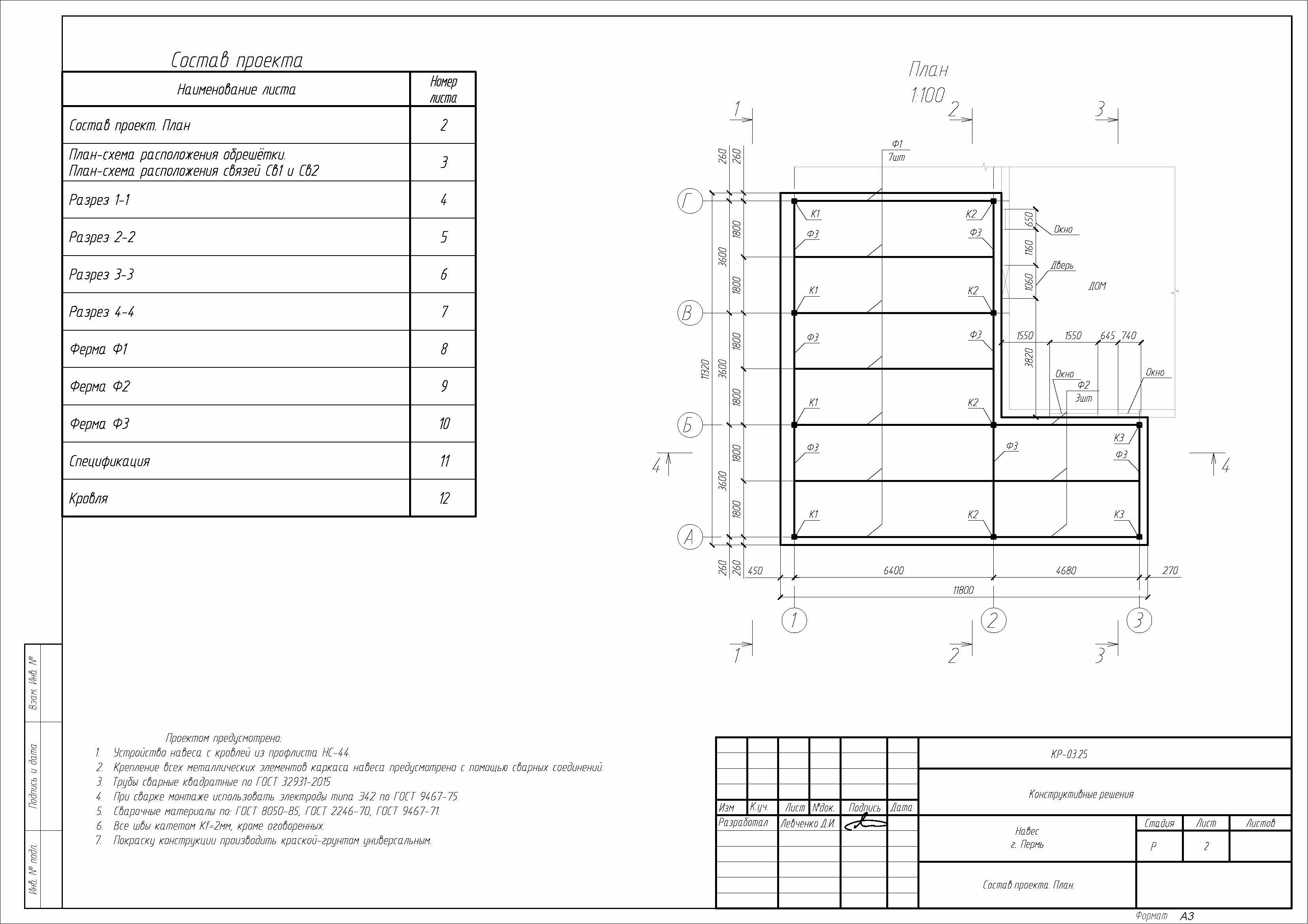
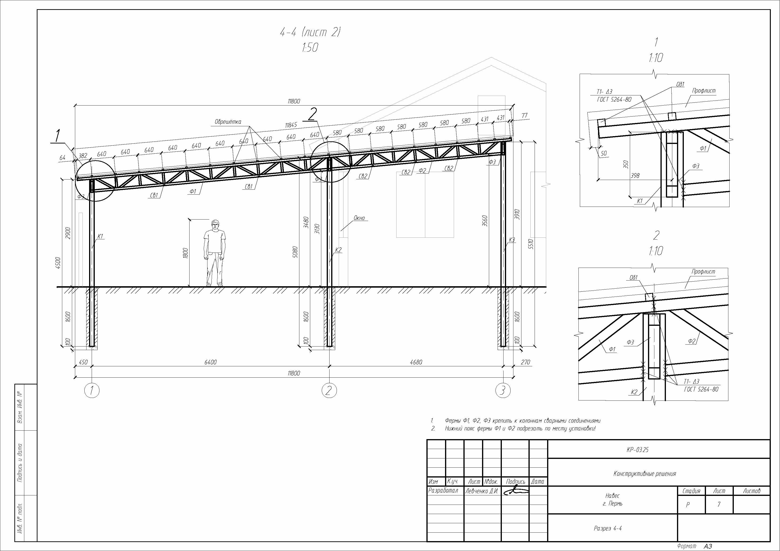
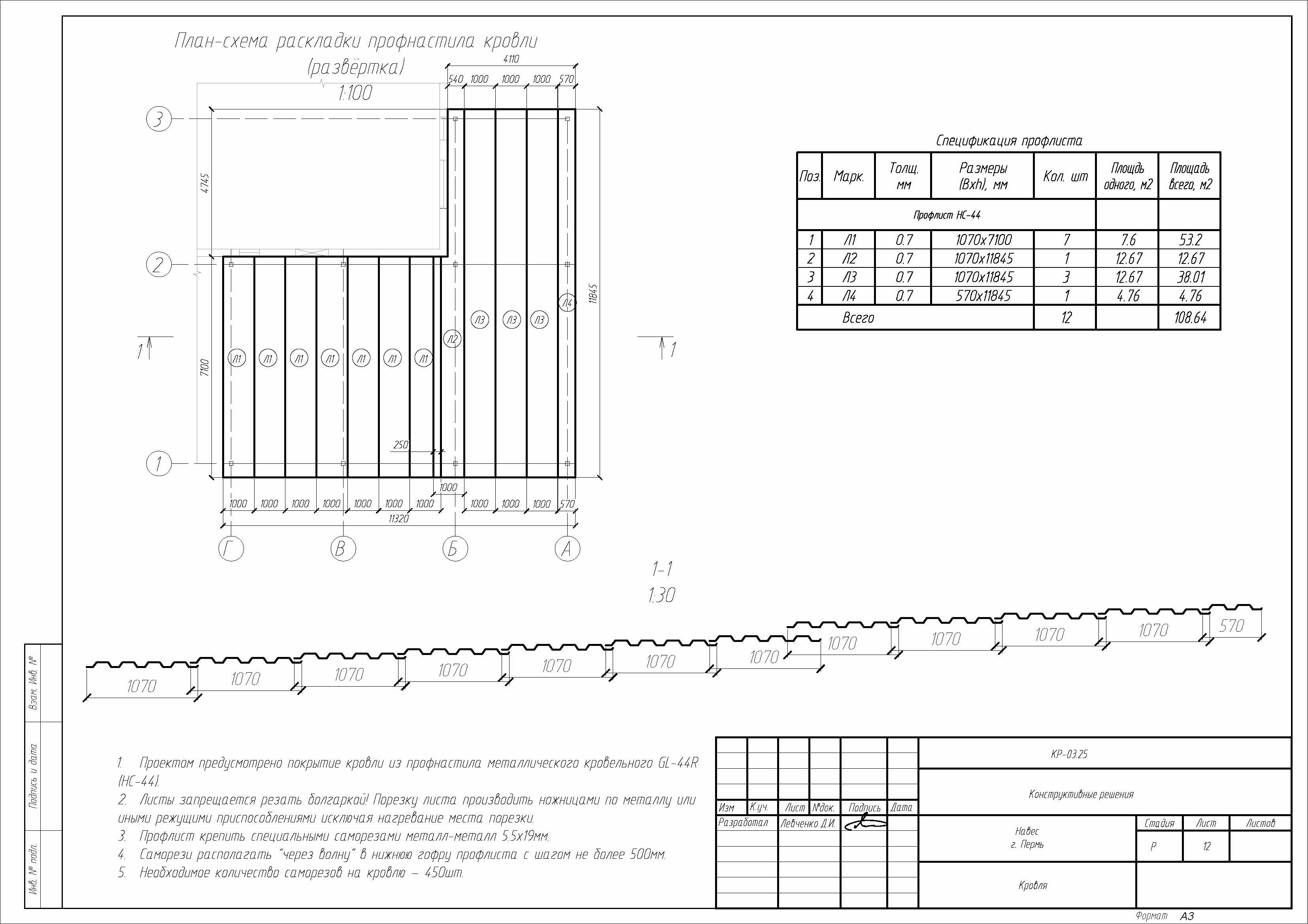
Презентация проекта

Итог1_Страница_01.jpg
Итог1_Страница_02.jpg
Итог1_Страница_03.jpg
Итог1_Страница_04.jpg
Итог1_Страница_05.jpg
Итог1_Страница_06.jpg
Итог1_Страница_07.jpg
Итог1_Страница_08.jpg
Итог1_Страница_09.jpg
Итог1_Страница_10.jpg

Оценили проект:

0