Интерьер
Для полной функциональности этого сайта необходимо включить JavaScript.
Санкт-Петербург
Быстро. Качественно. Недорого.
Максим К
maxi-k
Рейтинг: 165
не верифицирован
Всего отзывов:
0
Активность:
Работ в портфолио:
75
Типовых услуг:
0
Работ на продажу:
0
Возраст:
10 лет
Зарегистрирован:
05.07.2015
Был на сайте:
2020-04-23 в 15:18
Написать Максим К
vk.com/chertezhiki
Предложить работу
Добавить в избранное
Добавить рекомендацию
Вконтакте
Пожаловаться
3D графика
53
0
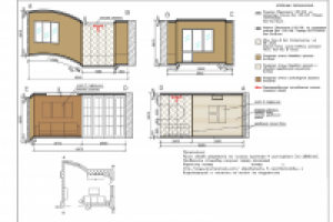
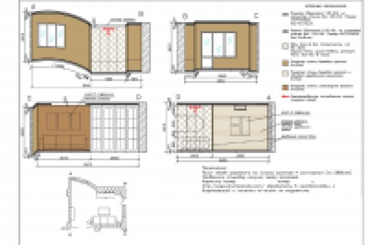
Интерьер
Используемые навыки:
3D Интерьеры
Описание
Решение
Результат
Соавторы
Презентация проекта
Примеры реализации
Описание
Презентация проекта
Оценили проект:
0
×
Оценили проект
×
Авторизация
Для того чтобы оценивать проекты, вам нужно войти на сайт
Другие проекты
Все проекты
Строительство общеобразовательного учреждения
Бетонирование тоннеля
ППР на устройство металлокаркаса здания
FREELANCE.RU
Toggle navigation
Нанять фрилансера
Заказчику
Каталог фрилансеров
Каталог PRO
Каталог студий
Каталог услуг
Каталог работ
Виртуальный HR
Умный поиск
Провести конкурс
Разместить задание
Найти работу
Найти задание
Присоединиться к команде
Участвовать в конкурсе
Предложить услугу
Вход
Разместить задание
▲