Профессионально занимаюсь:
- Разработкой документации для дизайн проектов в Revit 2025- Визуализацией интерьеров в 3dsmax+corona render- Обмерными работами
Техническая часть дизайн проекта
Визуализация ЖК Невский
Загородный дом
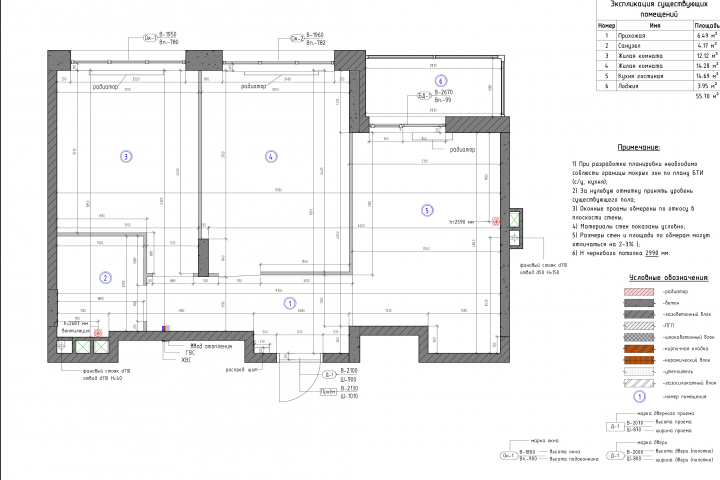
Обмерный план
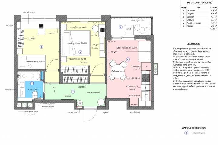
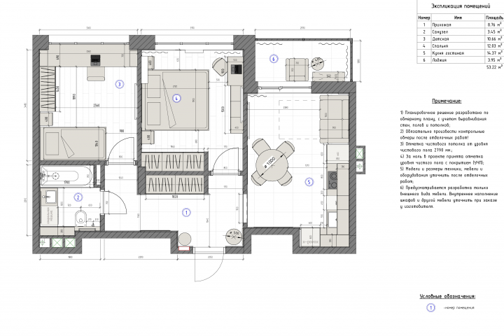
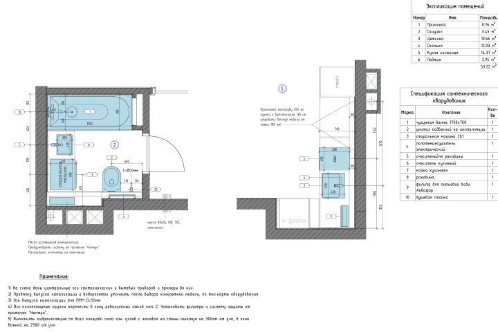
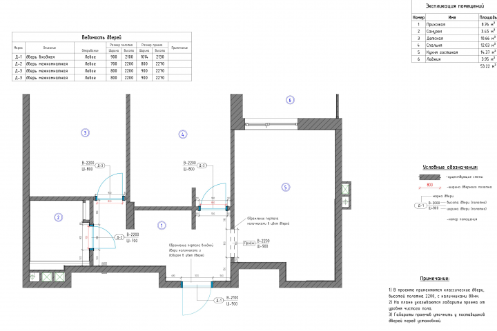
Планировочное решение с зонами по БТИ
Планировочное решение с размерами
Обзорная 3D схема
Схема монтажа стен
Монтажный узел
Схема расстановки сантех. оборудования
Схема электровыводов и розеток
Схема размещения осветительных приборов
Схема подключения осветительных приборов
Схема потолков
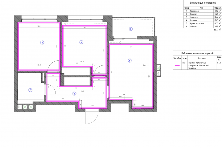
Схема потолочных карнизов
Схема напольных покрытий
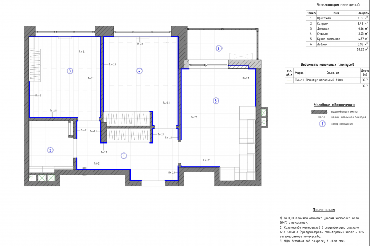
Схема плинтусов
Схема дверей
Схема чистовой отделки
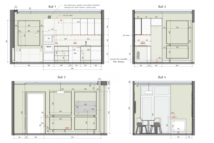
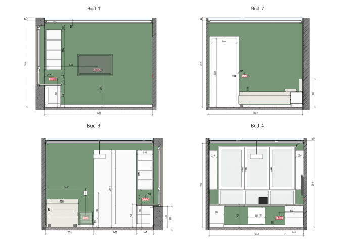
Развертка стен 1
Развертка стен 2
Развертка стен 3
Развертка стен 4
Развертка стен 5