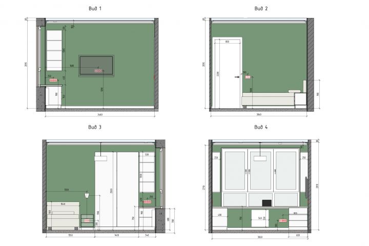
Развертка стен 3
Для полной функциональности этого сайта необходимо включить JavaScript.
Москва
Важны только три показателя работы-точность, скорость, качество.
Дмитрий Бадаев
badaev86
Рейтинг: 103
Паспорт верифицирован
Всего отзывов:
0
Нейросаммари
Работ в портфолио:
33
Типовых услуг:
0
Работ на продажу:
0
Возраст:
39 лет
Зарегистрирован:
28.02.2019
Был на сайте:
2025-06-26 в 17:51
+7 (963) 635-89-19
inbox
telegram
whatsapp
Предложить работу
Добавить в избранное
Добавить рекомендацию
Пожаловаться
Инженерия
21
0
Развертка стен 3
Используемые навыки:
Чертежи/Схемы
Описание
Решение
Результат
Соавторы
Презентация проекта
Примеры реализации
Описание
Развертка стен 3
Презентация проекта
Оценили проект:
0
×
Оценили проект
×
Авторизация
Для того чтобы оценивать проекты, вам нужно войти на сайт
Другие проекты
Все проекты
Детская
Развертка стен 1
Спальня
FREELANCE.RU
Toggle navigation
Нанять фрилансера
Заказчику
Найти по специализации
Найти по услугам
Провести конкурс
Разместить задание
Виртуальный HR
Найти студию
Другое
Найти работу
Фрилансеру
Найти задание
Присоединиться к команде
Участвовать в конкурсе
Предложить услугу
Другое
Возможности
Для заказчика
Для фрилансера
Вход
Разместить задание
▲