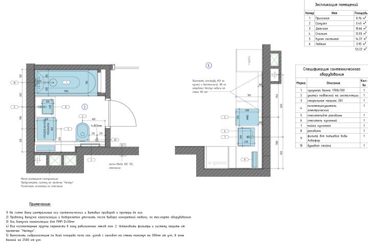
Схема расстановки сантех. оборудования
Для полной функциональности этого сайта необходимо включить JavaScript.
Москва
Важны только три показателя работы-точность, скорость, качество.
Дмитрий Бадаев
badaev86
Рейтинг: 103
Паспорт верифицирован
Всего отзывов:
0
Нейросаммари
Работ в портфолио:
33
Типовых услуг:
0
Работ на продажу:
0
Возраст:
39 лет
Зарегистрирован:
28.02.2019
Был на сайте:
2025-06-26 в 17:51
+7 (963) 635-89-19
inbox
telegram
whatsapp
Предложить работу
Добавить в избранное
Добавить рекомендацию
Пожаловаться
Инженерия
21
0
Схема расстановки сантех. оборудования
Используемые навыки:
Чертежи/Схемы
Описание
Решение
Результат
Соавторы
Презентация проекта
Примеры реализации
Описание
Схема расстановки сантех. оборудования
Презентация проекта
Оценили проект:
0
×
Оценили проект
×
Авторизация
Для того чтобы оценивать проекты, вам нужно войти на сайт
Другие проекты
Все проекты
Техническая часть дизайн проекта
Схема плинтусов
Схема подключения осветительных приборов
FREELANCE.RU
Toggle navigation
Нанять фрилансера
Заказчику
Найти по специализации
Найти по услугам
Провести конкурс
Разместить задание
Виртуальный HR
Найти студию
Другое
Найти работу
Фрилансеру
Найти задание
Присоединиться к команде
Участвовать в конкурсе
Предложить услугу
Другое
Возможности
Для заказчика
Для фрилансера
Вход
Разместить задание
▲