Рейтинг: 95
не верифицирован
Всего отзывов: 0
  • Активность:
  • Работ в портфолио: 25
  • Типовых услуг: 0
  • Работ на продажу: 0
  • Зарегистрирован: 21.11.2012
Был на сайте:

Обо мне

Предоставляемые услуги:
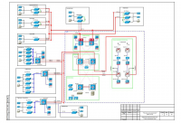
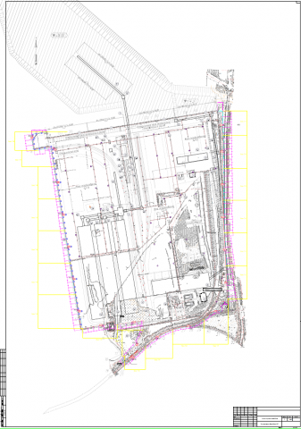
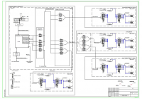
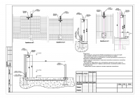
Разработка проектов стадии «П» в соответствии с постановлением №87 раздел 5, подраздел д) "Сети связи", по системам АПС, ПТ, СОУЭ (раздел 9 "Мероприятия по обеспечению пожарной безопасности". Также разрабатываем проекты по ЭОМ.
Составление технических заданий.
Сопровождение проектов при прохождении их Государственной экспертизе снятие замечаний, получение положительного заключения.
Разработка проектов стадии «Р» всех слаботочных разделов, с выдачей всех необходимых заданий смежникам.
Проекты выполняем в программе AutoCAD 2007-2015, Word (по желанию перевод в формат .pdf)
Проекты выполняем в соответствии с нормативными документами PФ, оформляем в соответствии с ГОСТ Р 21-1101-2009.
Разрабатываем проекты качественно, в указанные сроки!

Опыт работы 10 лет.