Полнота проектной документации = полнота исходных данных.

Константин Струпеховский ELSP

Рейтинг: 108
не верифицирован
Всего отзывов: 3 0
  • Работ в портфолио: 23
  • Типовых услуг: 0
  • Работ на продажу: 0
  • Возраст: 49 лет
  • Зарегистрирован: 17.12.2012
Был на сайте:

Обо мне

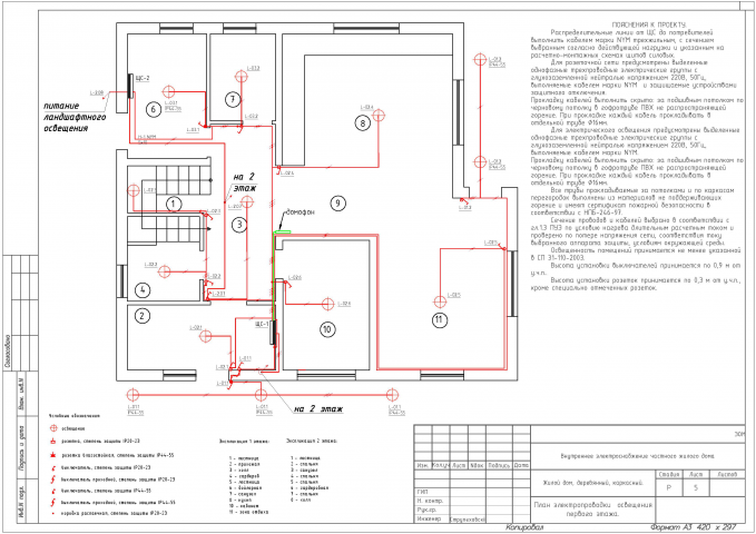
Проектирование электроснабжения различных объектов напряжением от 0,23кВ до 110кВ, также реконструкции существующих систем электроснабжения с 2001 года.
Консультации по различным вопросам электроснабжения.

Проектирование ЭО и ЭМ ДОУ 160 мест

Качество работы, продуманность проектного решения на высоте. Проект четкий и понятный для монтажа.

ООО "Интеллект"
05.05.2016
Внутриквартальные сети электроснабжения 0,4 кВ.

Ставлю Константину твердую пятерку за проект! Всегда на связи. Рекомендую!

Андрей Таран
27.11.2014
Нужно нарисовать проект коттеджа по электрике в автокаде

Работа выполнена в срок. Качество отличное. Константин всегда на связи. Выполненной работой доволен. Рекомендую. Буду обращаться…

Александр
23.03.2014

Проекты в портфолио

AI Резюме (ru) AI Резюме (en)