Полнота проектной документации = полнота исходных данных.

Константин Струпеховский ELSP

Рейтинг: 108
не верифицирован
Всего отзывов: 3 0
  • Работ в портфолио: 23
  • Типовых услуг: 0
  • Работ на продажу: 0
  • Возраст: 49 лет
  • Зарегистрирован: 17.12.2012
Был на сайте:

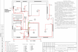
Внутреннее электроснабжение каркасного деревянного дома

Используемые навыки:

Описание

Проект небольшого коттеджа каркасной конструкции.
Выполнен в течении 3 дней.

Презентация проекта

pic3715922.jpg

Оценили проект:

0