Полнота проектной документации = полнота исходных данных.

Константин Струпеховский ELSP

Рейтинг: 108
не верифицирован
Всего отзывов: 3 0
  • Работ в портфолио: 23
  • Типовых услуг: 0
  • Работ на продажу: 0
  • Возраст: 49 лет
  • Зарегистрирован: 17.12.2012
Был на сайте:

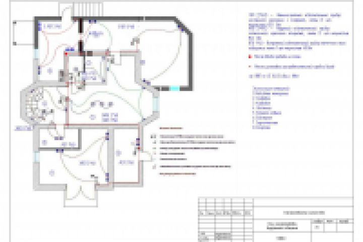
Проект внутреннего электроснабжения жилого дома

Описание

Разработаны схемы электропроводки по дому, рассчитаны аппараты защиты и кабельно-проводниковая продукция, разработана схема распределительного щита, составлены спецификации материалов и оборудования.
Все работы выполнены в соответствии с техническим заданием Заказчика, а также действующими нормами и правилами.

Презентация проекта

pic1741504.jpg

Оценили проект:

0