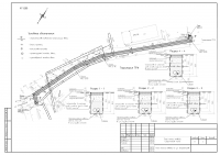
Переход методом ГНБ железной дороги
Продольный профиль перехода ж/д кабелем связи
Продольный переход кабелем ВОЛС газопровода методом ГНБ
Ситуационный план трассы телефонной канализации
Схема прокладки ВОЛС в городской канализации
Продольный профиль трассы телефонной канализации
План полосы отвода (образец)
Схема разварки волокон в оптической муфте
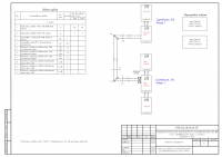
Объем строительно-монтажных работ
Образец спецификации ВОЛС
План ввода оптического кабеля в помещение связи_2
План ввода оптического кабеля в помещение связи_1
Магистральная сеть ГТС в многоквартирных домах
Распредсеть в многоэтажном доме
Распредсеть в здании (расстановка КРТН)