Графический дизайнер, опыт работы около двадцати летОсновная работа на ТМ Guahoo
Рабочие инструменты Corel Draw, Adobe (Illustrator, Photoshop, InDesign)Отрисовываю в векторе, верстаю от визиток до каталогов и наружной рекламы
Сет плакатов для автомастерской
Макет пилона для ТЦ
Постер для салона красоты
Меню для кафе
Баннер для рекламы магазина одежда в ТЦ
Рекламный баннер для магазина
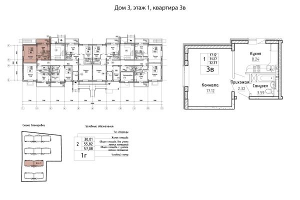
Верстка отдельных схем квартир для строительной компании
Баннеры наружной рекламы для строительной компании
Гастробар Today, плакат и флаер мероприятия
Брошюра и листовки для строительной компании Руском
Полное сопровождение компании в течение 20 лет