Рейтинг: 71
Верифицирован через Сбер ID
Всего отзывов: 0
  • Работ в портфолио: 11
  • Типовых услуг: 0
  • Работ на продажу: 0
  • Возраст: 43 года
  • Стаж работы: 24 года
  • Зарегистрирован: 20.01.2026
  • Образование: Cпециалитет
  • Юридический статус:Частное лицо
  • Стоимость услуг (руб): 600 за час
Была на сайте:

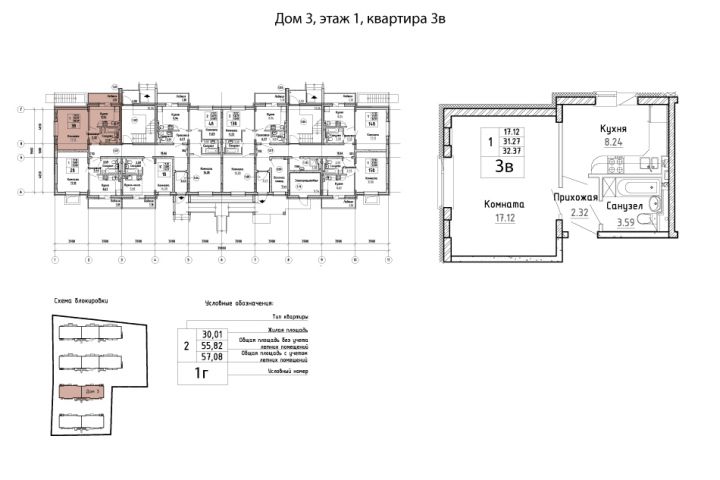
Верстка отдельных схем квартир для строительной компании

Описание

Задача: разделить поэтажные планы зданий на отдельные квартиры, количеством больше 600 штук. Передать заказчику

Решение

Полученные поэтажные планы были разделены на поквартирные в Иллюстраторе, с удалением лишних объектов и оформлением в едином стиле по образцу, предоставленному заказчиком.

Результат

В результате работы заказчик получил ожидаемые файлы в срок.

Презентация проекта

ПСО-Поз.-24.-Вторые-этажи-Поквартирно-корпус-1-блоки-1-3.jpg

Оценили проект:

0