Быстро, качественно, недорого

Семен Шишов ruderalis

Рейтинг: 117
Паспорт верифицирован
Всего отзывов: 1 0
Опубликовал заданий: 1
  • Работ в портфолио: 42
  • Типовых услуг: 0
  • Работ на продажу: 0
  • Возраст: 36 лет
  • Зарегистрирован: 16.08.2022
Был на сайте:

Обо мне

Проектирую жилые (частные и коммерческие), общественные, промышленные здания и сооружения более 10 лет.

Разрабатываю следующие разделы:
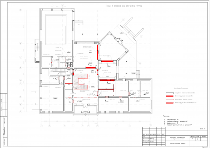
архитектурные решения (АР);
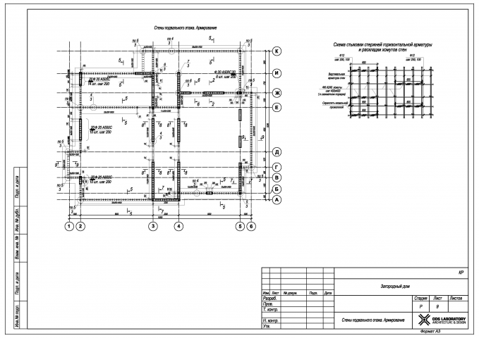
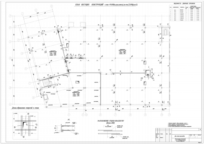
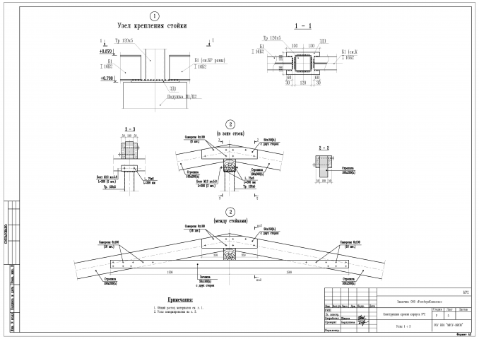
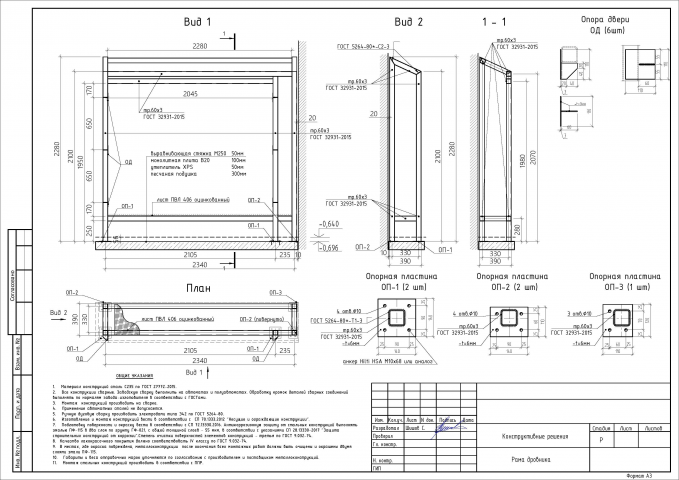
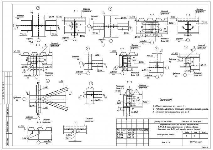
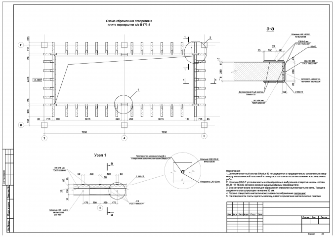
конструктивные решения КЖ, КМ, КД (конструкции железобетонные, металлические и деревянные).
В проекте применяю оптимальные, рациональные решения с обоснованием экономической эффективности принятых решений.
Выполняю расчет конструкций. Чертежи в соответствии с 87 постановлением Правительства и другой действующей нормативной документацией.

Также занимаюсь управлением проектов, поэтому смогу найти исполнителя на все разделы проектной документации, сформировать задание, отследить выполнение в срок, проверить документацию

дизайн-проект двухкомнатной квартиры

Семен, выполнил свою работу отлично. Смотрю на первоначальные картинки визуализации и на то,что по итогу ремонта получилось и очень…

Юля Акутина
21.11.2022