Быстро, качественно, недорого

Семен Шишов ruderalis

Рейтинг: 117
Паспорт верифицирован
Всего отзывов: 1 0
Опубликовал заданий: 1
  • Работ в портфолио: 42
  • Типовых услуг: 0
  • Работ на продажу: 0
  • Возраст: 36 лет
  • Зарегистрирован: 16.08.2022
Был на сайте:

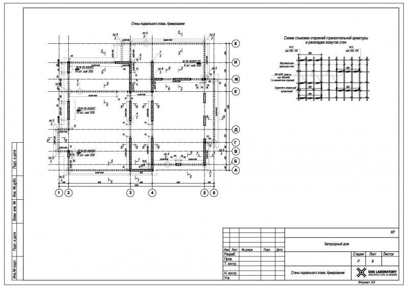
Коттедж КЖ монолит

Описание

Раздел КЖ (конструкции железобетонные) для двухэтажного коттеджа

Презентация проекта

pic4342837.jpg

Оценили проект:

0