Рейтинг: 64
не верифицирован
Всего отзывов: 0
  • Работ в портфолио: 14
  • Типовых услуг: 0
  • Работ на продажу: 0
  • Зарегистрирован: 28.10.2020
Был на сайте:

Умный дом и Электрика квартиры 120м2

Используемые навыки:

Описание

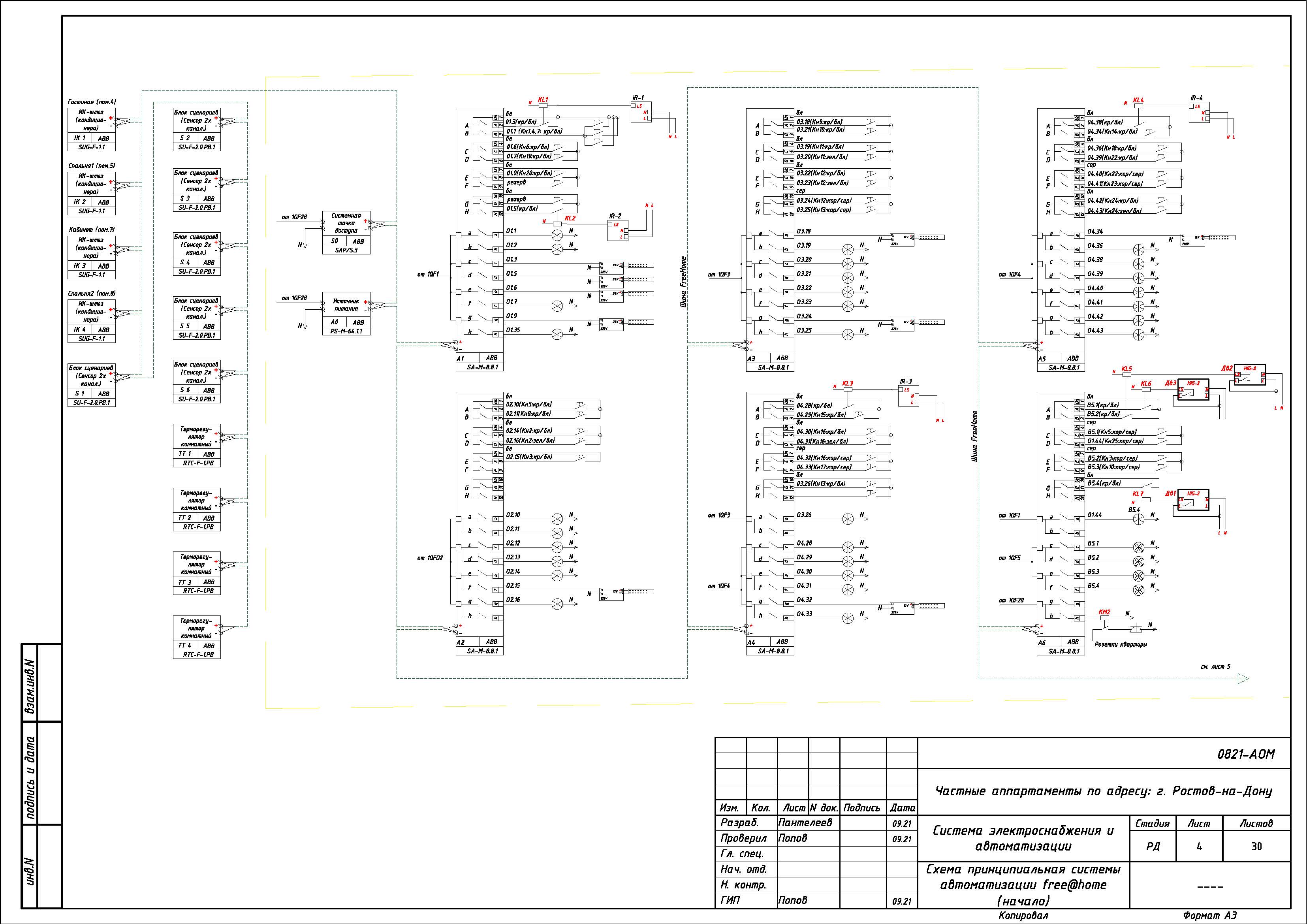
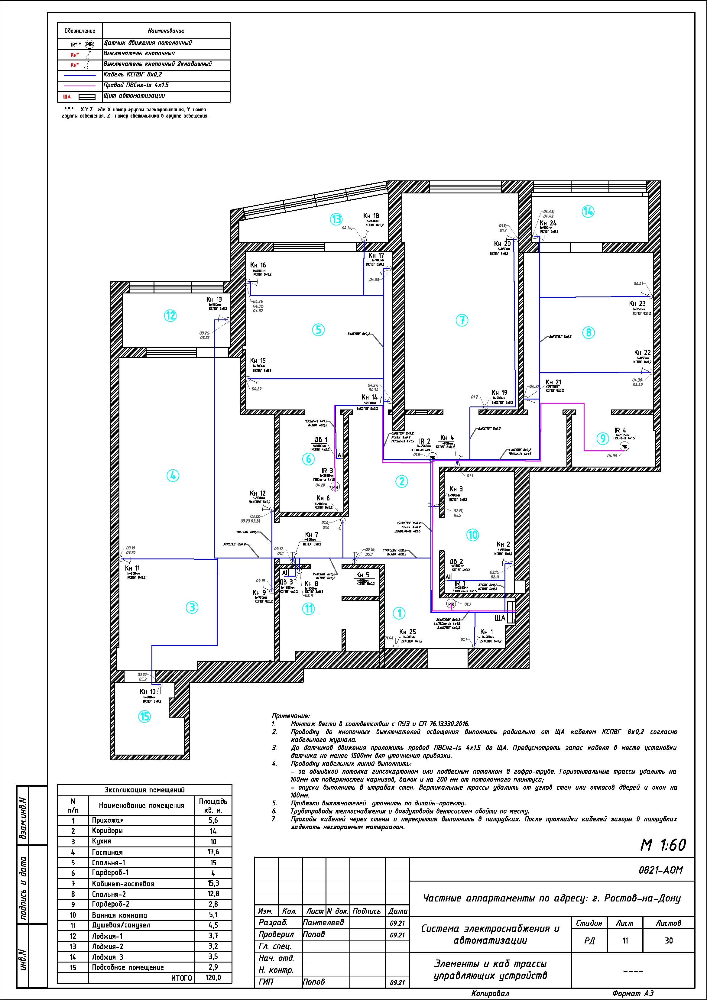
Система автоматизированного управления освещением, шторами, отоплением, кондиционированием, увлажнением на базе оборудования Free@Home (ABB) и Dali.
Система электроснабжения. Система защиты от протечек. Информационная сеть (СКС).

Презентация проекта

pic4245590.jpg
Нижегородская ЭОМ и АОМ_Страница_06.jpg
Нижегородская ЭОМ и АОМ_Страница_08.jpg
Нижегородская ЭОМ и АОМ_Страница_09.jpg
Нижегородская ЭОМ и АОМ_Страница_10.jpg
Нижегородская ЭОМ и АОМ_Страница_11.jpg
Нижегородская ЭОМ и АОМ_Страница_13.jpg
Нижегородская ЭОМ и АОМ_Страница_16.jpg

Оценили проект:

0