Рейтинг: 64
не верифицирован
Всего отзывов: 0
  • Работ в портфолио: 14
  • Типовых услуг: 0
  • Работ на продажу: 0
  • Зарегистрирован: 28.10.2020
Был на сайте:

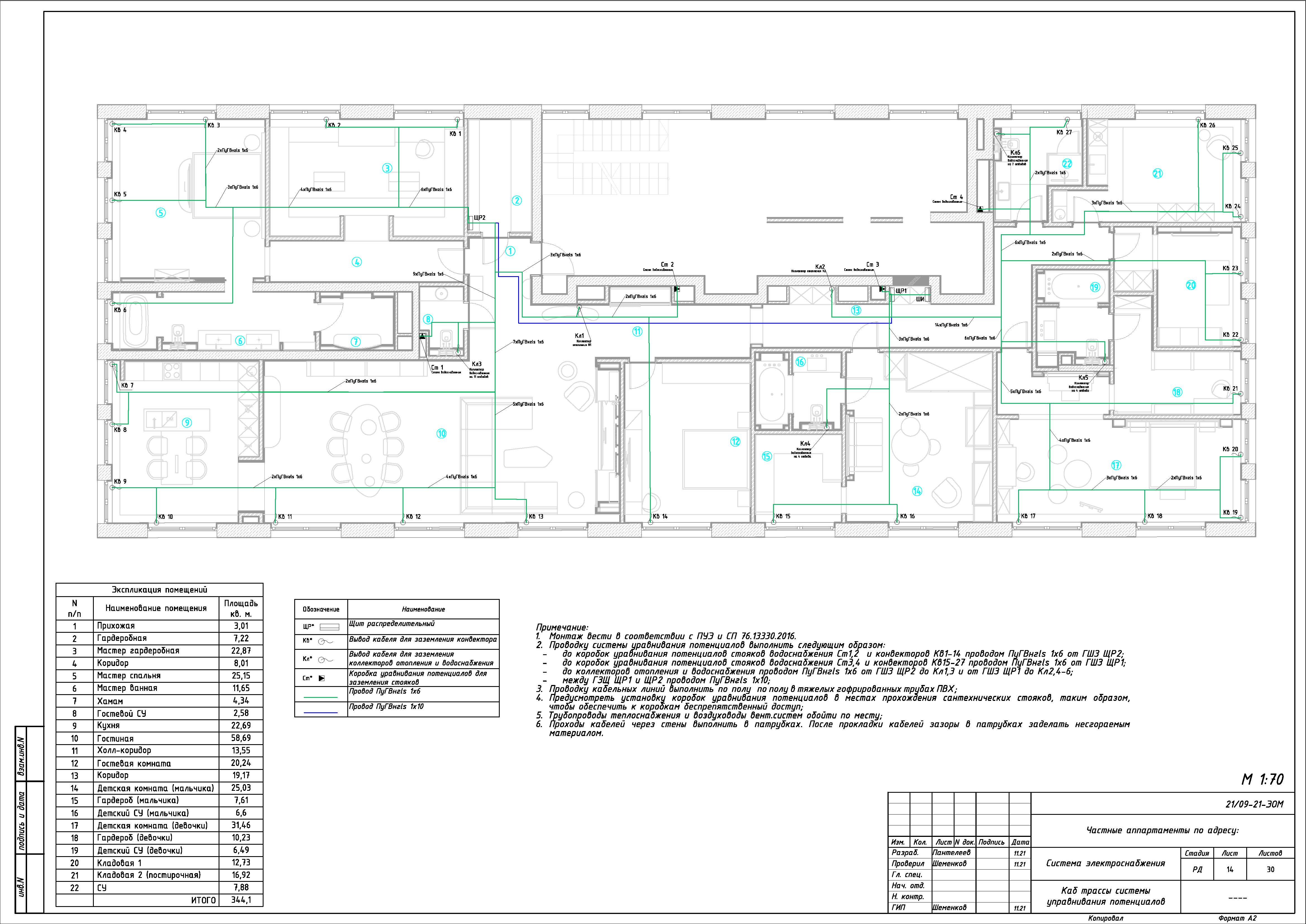
Электроснабжение квартиры 344м2

Используемые навыки:

Описание

Два ввода в квартиру, защита от пожара по причине повреждения изоляции, защита от перепада напряжения на вводах.
Разработана схема управления приводами штор 220В с нескольких мест.
Все блоки питания светодиодных подсветок размещены в отельном щите.
Выделенные нагрузки: Хамам, бойлеры, встроенное кухонное оборудование, системы вентиляции-кондиционирования.

Презентация проекта

pic4245627.jpg
Графическая часть ЭОМ_Страница_11.jpg
Графическая часть ЭОМ_Страница_16.jpg

Оценили проект:

0