Никогда не останавливайся в развитии!..

Алексей Раск alanrask

Рейтинг: 65
не верифицирован
Всего отзывов: 0
  • Работ в портфолио: 5
  • Типовых услуг: 0
  • Работ на продажу: 0
  • Стаж работы: 46 лет
  • Тип занятости: Полный фриланс
  • Юридический статус:Самозанятый
Был на сайте:

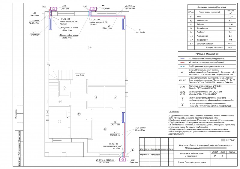
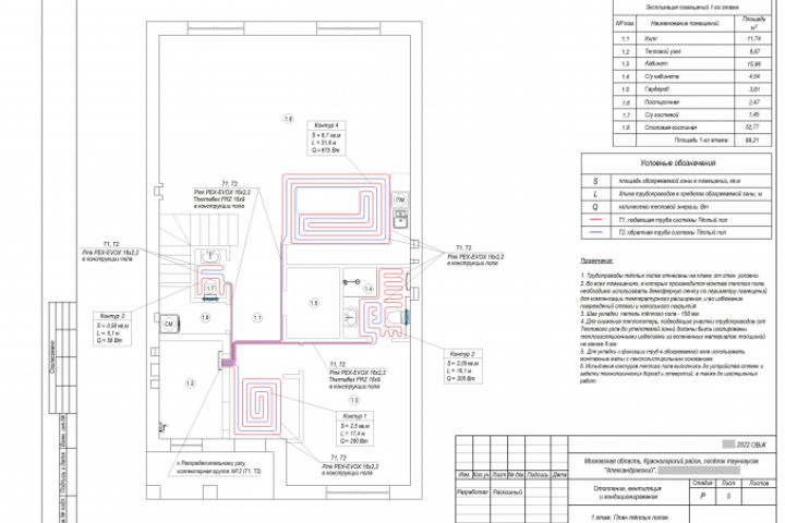
Рабочий проект раздел ОВиК (отопление, вентиляция, кондицион-е.)

Описание

Здесь представлен фрагмент инженерного проекта ОВиК (отопление, вентиляция и кондиционирование), выполненного для отдельной секции в посёлке таунхаусов "Александровский" (Московская область, Красногорский район).
Состав раздела ОВиК состоит обычно из 25-30 листов, который включает:
- общие данные объекта;
- описание структуры и принципов построения систем ОВиК;
- указания и рекомендации для монтажников;
- расчёт тепловых потерь и теплотехнический расчёт;
- планы системы отопления (радиаторы и конвекторы) отдельно для каждого этажа;
- планы системы Тёплый пол отдельно для каждого этажа;
- планы системы вентиляции отдельно для каждого этажа;
- планы системы кондиционирования отдельно для каждого этажа;
- схемы коллекторных групп систем отопления и тёплых полов;
- схемы узлов подключения отопительного оборудования;
- схемы монтажных узлов и наиболее сложных фрагментов систем ОВиК;
- схемы аксонометрические систем отопления, вентиляции и кондиционирования;
- спецификация материалов, изделий и оборудования.

Презентация проекта

pic4383134.jpg
3.1эт. План отопления.png
7.1эт. План вентиляции.png
12. Коллекторы отопления.png
13. Коллектор теплых полов.png
14. Монтажные узлы.png
15. Фрагменты системы отопления.png
2. Теплопотери, вент.системы.png

Оценили проект:

0