Никогда не останавливайся в развитии!..

Алексей Раск alanrask

Рейтинг: 65
не верифицирован
Всего отзывов: 0
  • Работ в портфолио: 5
  • Типовых услуг: 0
  • Работ на продажу: 0
  • Стаж работы: 46 лет
  • Тип занятости: Полный фриланс
  • Юридический статус:Самозанятый
Был на сайте:

Рабочий проект раздела ТМ (тепломеханические решения)

Описание

Здесь представлены фрагменты проектного раздела ТМ (тепломеханические решения), выполненного для Индивидуального Теплового пункта (ИТП) в отдельной секции в посёлке таунхаусов "Александровский" (Московская область, Красногорский район).
Состав раздела ТМ состоит обычно из 20-25 листов, который включает:
- общие данные объекта;
- описание структуры и принципов построения систем ИТП;
- указания и рекомендации для монтажников;
- план/схема размещения технологического оборудования в помещении ИТП;
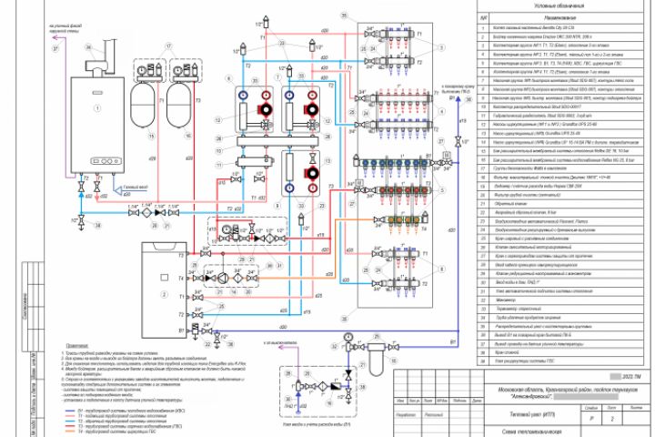
- схемы распределительного узла и коллекторных групп систем отопления и водоснабжения;
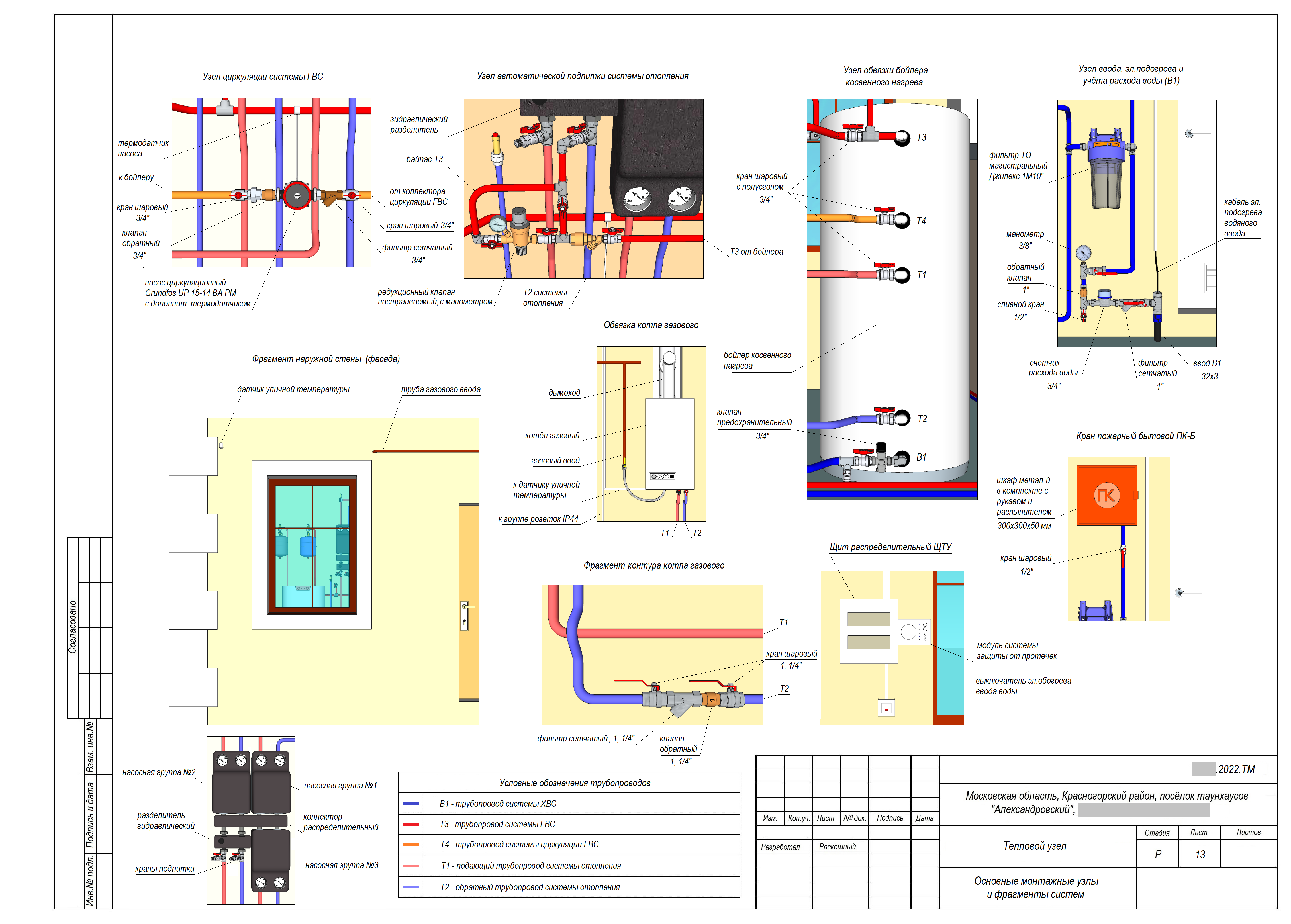
- схемы основных монтажных узлов и наиболее ответственных фрагментов систем, входящих в состав ИТП;
- схема технологического контура заземления в помещении ИТП и способы подключения к нему технологического оборудования;
- схемы расположения и подключения дополнительных систем (защиты от протечек; эл.подогрев водяного ввода в зимний период; пожарный кран бытовой ПК-Б...);
- 3D визуализация всех систем, входящих в состав ИТП;
- спецификация материалов, изделий и оборудования.

Презентация проекта

pic4383057.jpg
3. План оборудования.png
4. Вид А-А.png
5. Вид Б-Б.png
6. Вид В-В.png
7. Вид Г-Г.png
8. Аксонометрия С-В.png
9. Аксонометрия С-З.png
10. Аксонометрия Ю-З.png
11. Аксонометрия Ю-В.png
12. Распред.узел,  коллект.группы.png
13. Основные монтажные узлы и фрагменты систем.png

Оценили проект:

0