вся жизнь - проект, а люди в ней фасады

Екатерина Давыдова vipeka

Рейтинг: 208
не верифицирован
Всего отзывов: 2 0
Выполнила заданий: 3
  • Работ в портфолио: 29
  • Типовых услуг: 2
  • Работ на продажу: 0
  • Возраст: 31 год
  • Зарегистрирован: 03.06.2017
Была на сайте:

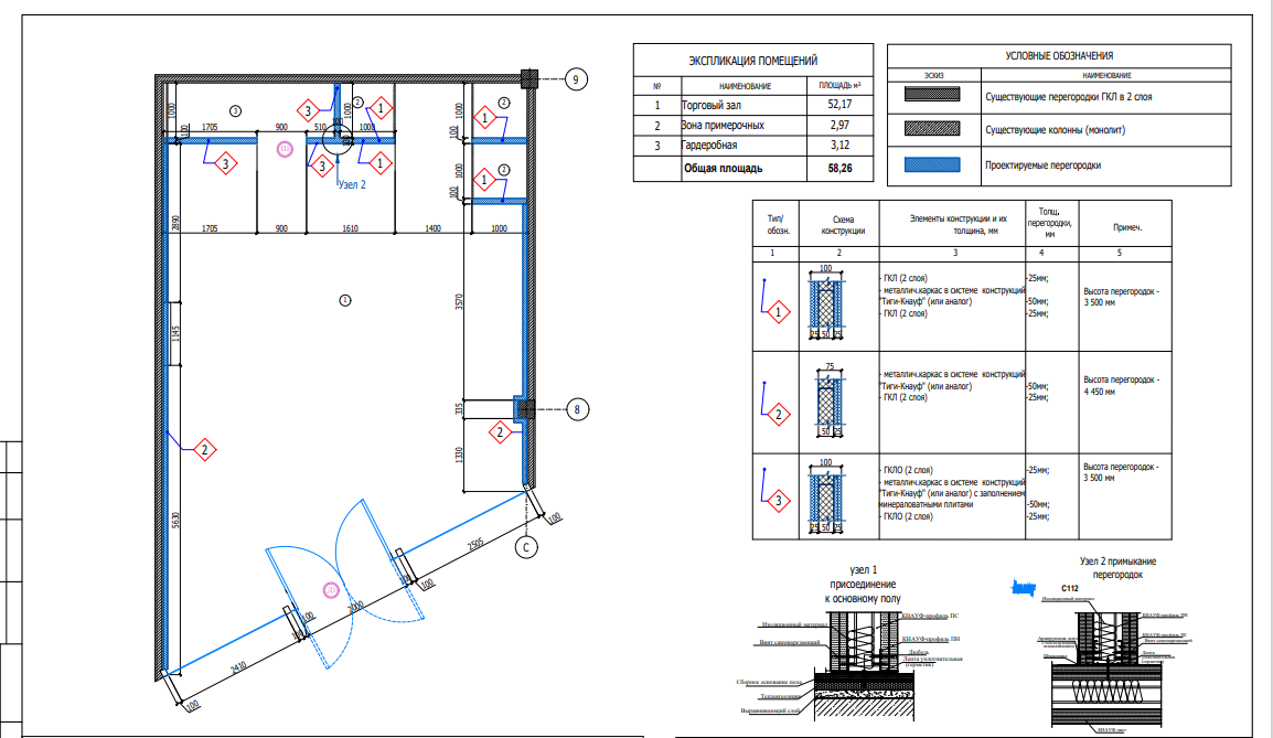
АР РД альбом чертежей 60 кв. м

Используемые навыки:

Описание

Альбом чертежей магазина РД в торговом центре, согласование с администрацией. Разработано по ТХ заказчика.

Презентация проекта

pic4441651.jpg
2023-05-14_23-45-28.png
2023-05-14_23-45-03.png
2023-05-14_23-44-44.png
2023-05-14_23-44-25.png
2023-05-14_23-44-00.png
2023-05-14_23-43-26.png
2023-05-14_23-42-58.png
2023-05-14_23-26-40.png

Оценили проект:

0