вся жизнь - проект, а люди в ней фасады

Екатерина Давыдова vipeka

Рейтинг: 208
не верифицирован
Всего отзывов: 2 0
Выполнила заданий: 3
  • Работ в портфолио: 29
  • Типовых услуг: 2
  • Работ на продажу: 0
  • Возраст: 31 год
  • Зарегистрирован: 03.06.2017
Была на сайте:

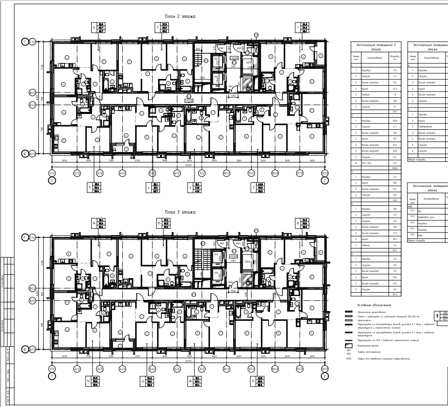
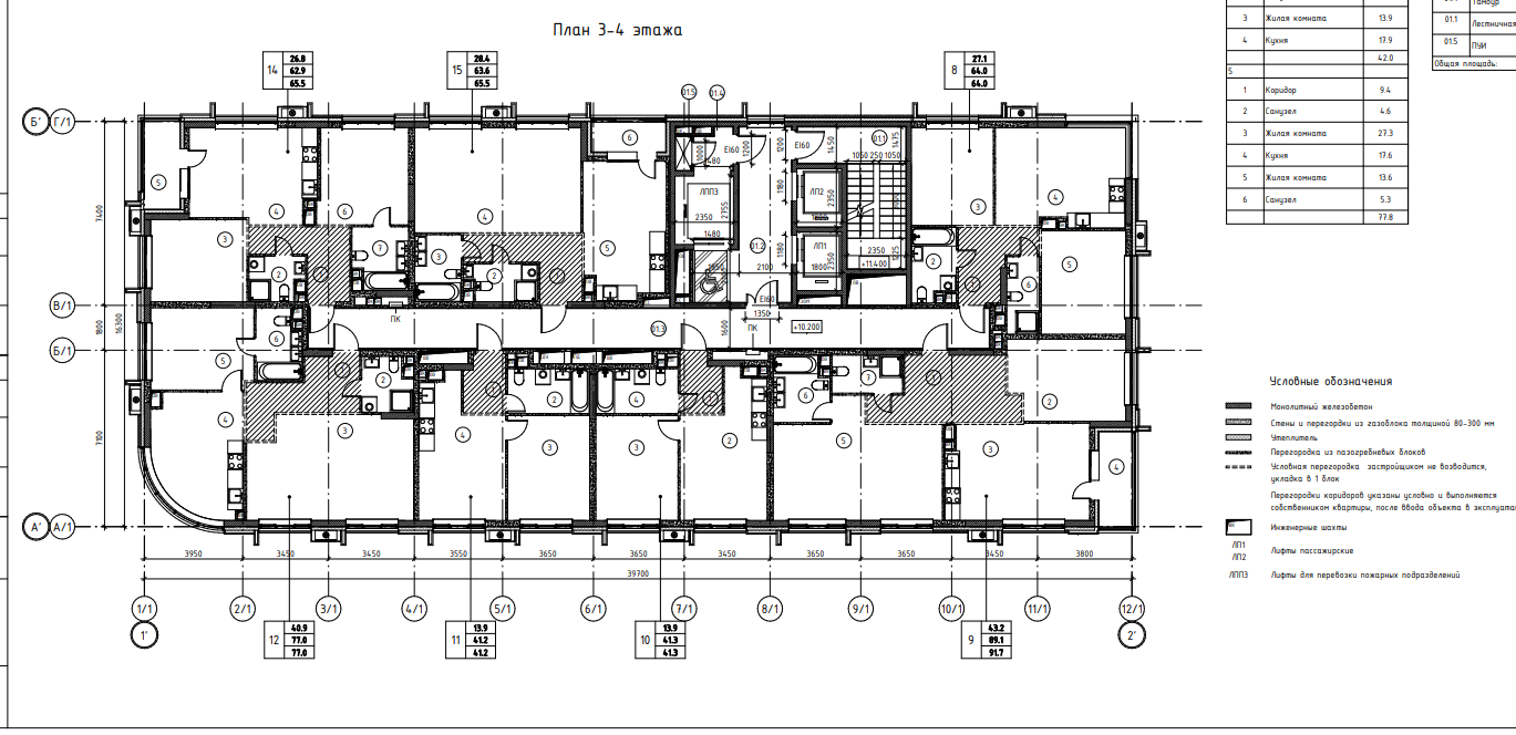
Проект МЖК Мневники стадия П 2020-2021

Описание

Проект стадии П по многофункциональному жилому комплексу. Коммерческое жилье повышенной этажности. Согласование с экспертизой, положительное заключение стадии П. Revit BIM модель.

Презентация проекта

pic4441605.jpg
2023-05-14_20-47-35.png
2023-05-14_23-57-18.png
2023-05-14_23-58-00.png
2023-05-14_23-59-17.png
2023-05-14_23-59-52.png
2023-05-15_00-00-28.png

Оценили проект:

0