вся жизнь - проект, а люди в ней фасады

Екатерина Давыдова vipeka

Рейтинг: 208
не верифицирован
Всего отзывов: 2 0
Выполнила заданий: 3
  • Работ в портфолио: 29
  • Типовых услуг: 2
  • Работ на продажу: 0
  • Возраст: 31 год
  • Зарегистрирован: 03.06.2017
Была на сайте:

РД Магазина для животных 64 кв м 2019 г

Используемые навыки:

Описание

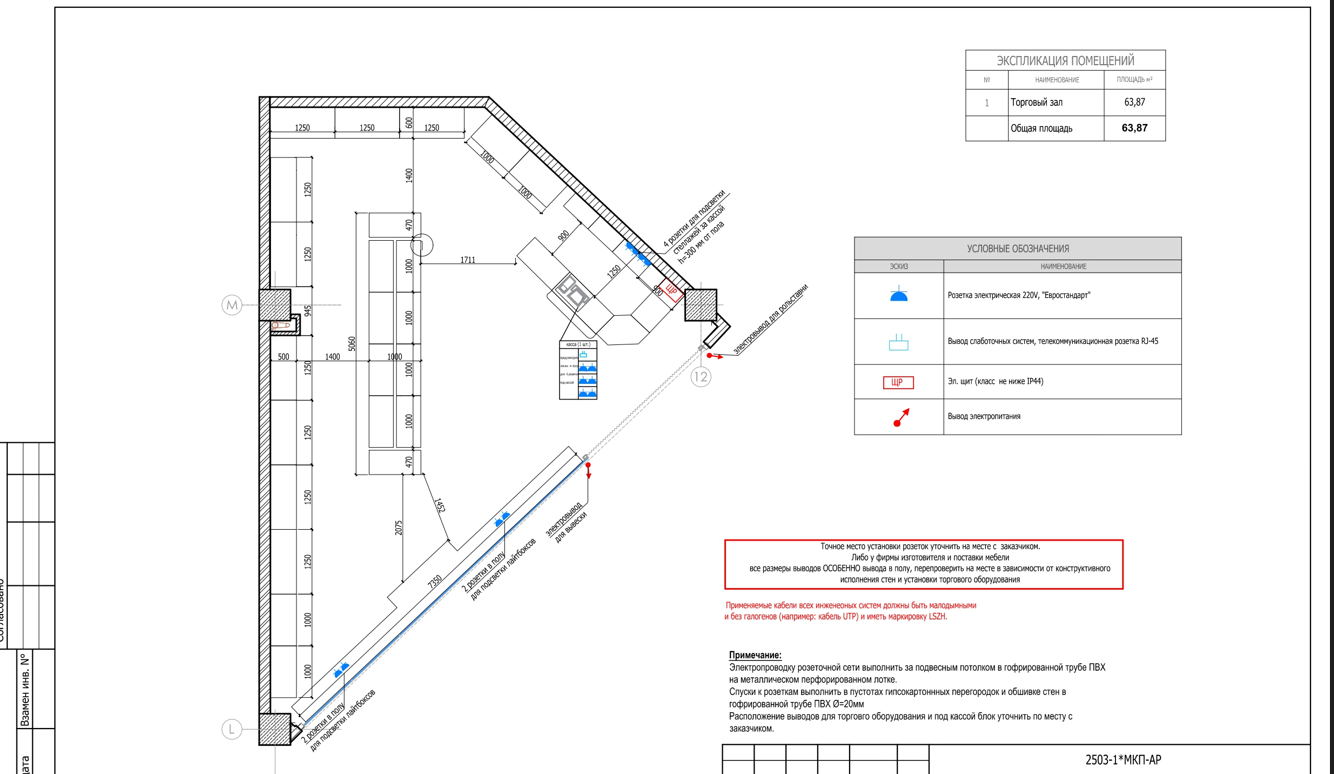
Альбом чертежей раздела АР рабочей документации помещения магазина в ТЦ. Объект реализован 2019 г, авторский надзор, согласование с администрацией торгового центра.

Презентация проекта

pic4441639.jpg
2023-05-14_23-05-31.png
2023-05-14_23-04-56.png
2023-05-14_23-06-03.png
2023-05-14_23-06-38.png
2023-05-14_23-07-10.png

Оценили проект:

0