вся жизнь - проект, а люди в ней фасады

Екатерина Давыдова vipeka

Рейтинг: 208
не верифицирован
Всего отзывов: 2 0
Выполнила заданий: 3
  • Работ в портфолио: 29
  • Типовых услуг: 2
  • Работ на продажу: 0
Была на сайте:

REVIT model

Используемые навыки:

Описание

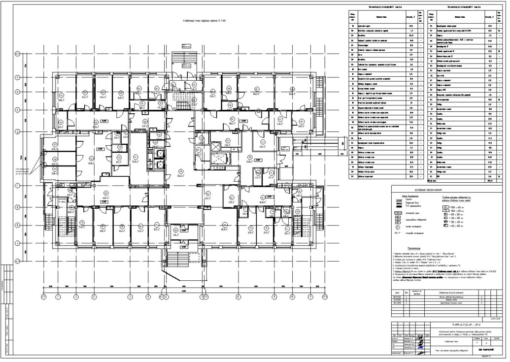
Модель здания разработана в REVIT 21, архитектура отстроена в соответствии с заданием заказчика, разработаны разделы АР (строительные планы, увязка систем ИОС, фасады, разрезы)

Презентация проекта

pic4441554.jpg
план.JPG

Оценили проект:

0