вся жизнь - проект, а люди в ней фасады

Екатерина Давыдова vipeka

Рейтинг: 331
не верифицирован
Всего отзывов: 2 0
Выполнила заданий: 3
  • Работ в портфолио: 29
  • Типовых услуг: 2
  • Работ на продажу: 0
  • Возраст: 31 год
  • Зарегистрирован: 03.06.2017
Была на сайте:

Проект АР ( РД ) квартира в ЖК Красногорск

Используемые навыки:

Описание

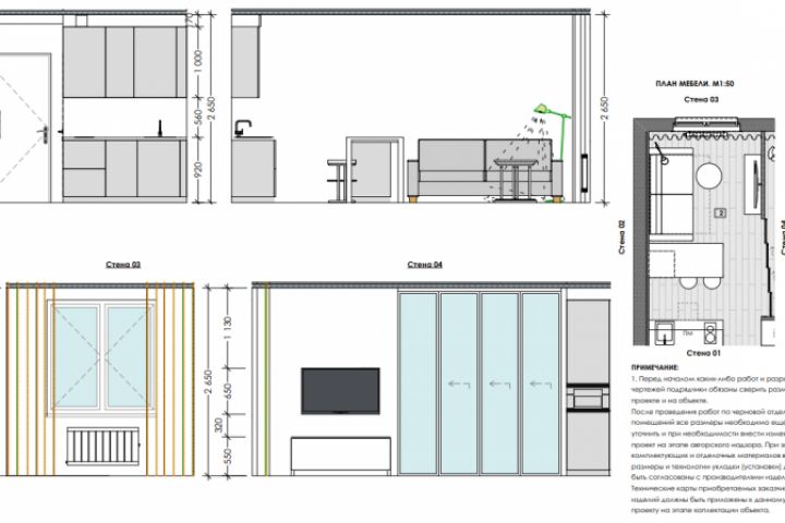
Альбом чертежей АР (РД) квартиры в жилом комплексе:
-пояснительная записка
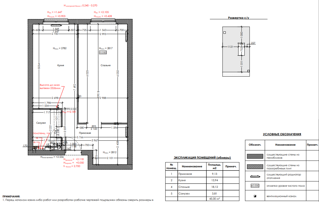
-обмерный план
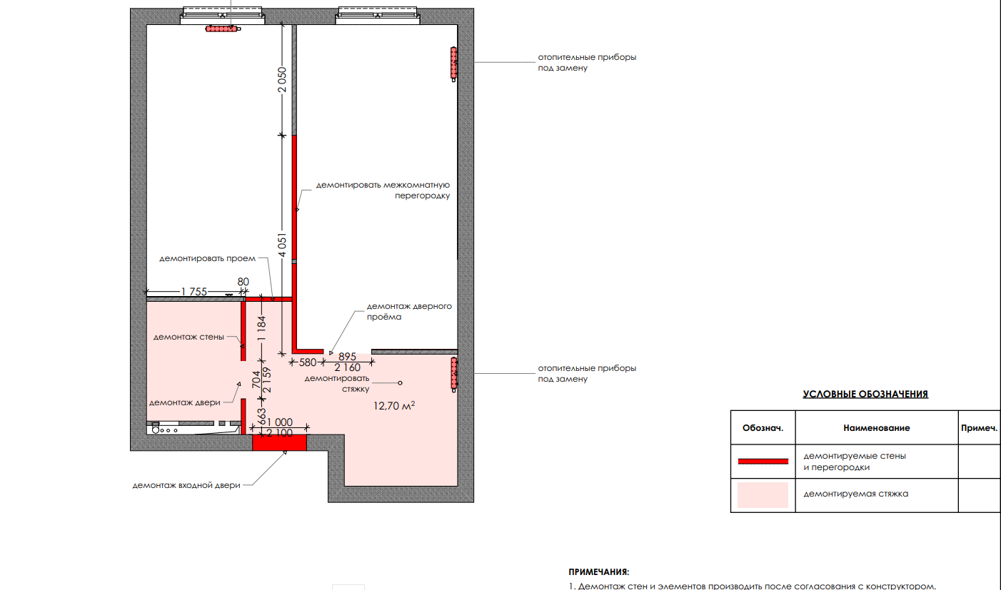
-план демонтажа
-план возводимых перегородок
-план расстановки мебели
-план размещения розеток
-план размещения светильников
-план расстановки выключателей
-развертки по помещениям
-детализация и строительные узлы

Презентация проекта

pic4441621.jpg
collage (1).png
2023-05-14_21-11-09.png
2023-05-14_21-11-48.png
2023-05-14_21-10-07.png
2023-05-14_21-08-44.png
2023-05-14_21-13-11.png
2023-05-14_21-12-32.png

Оценили проект:

0