Я не разделяю архитектуру и дизайн, для меня это единое целое

Буевич Максим maksekost80

Рейтинг: 128
не верифицирован
Всего отзывов: 3 0
Выполнил заданий: 3
  • Работ в портфолио: 23
  • Типовых услуг: 0
  • Работ на продажу: 3
  • Возраст: 45 лет
  • Зарегистрирован: 07.07.2019
Был на сайте:

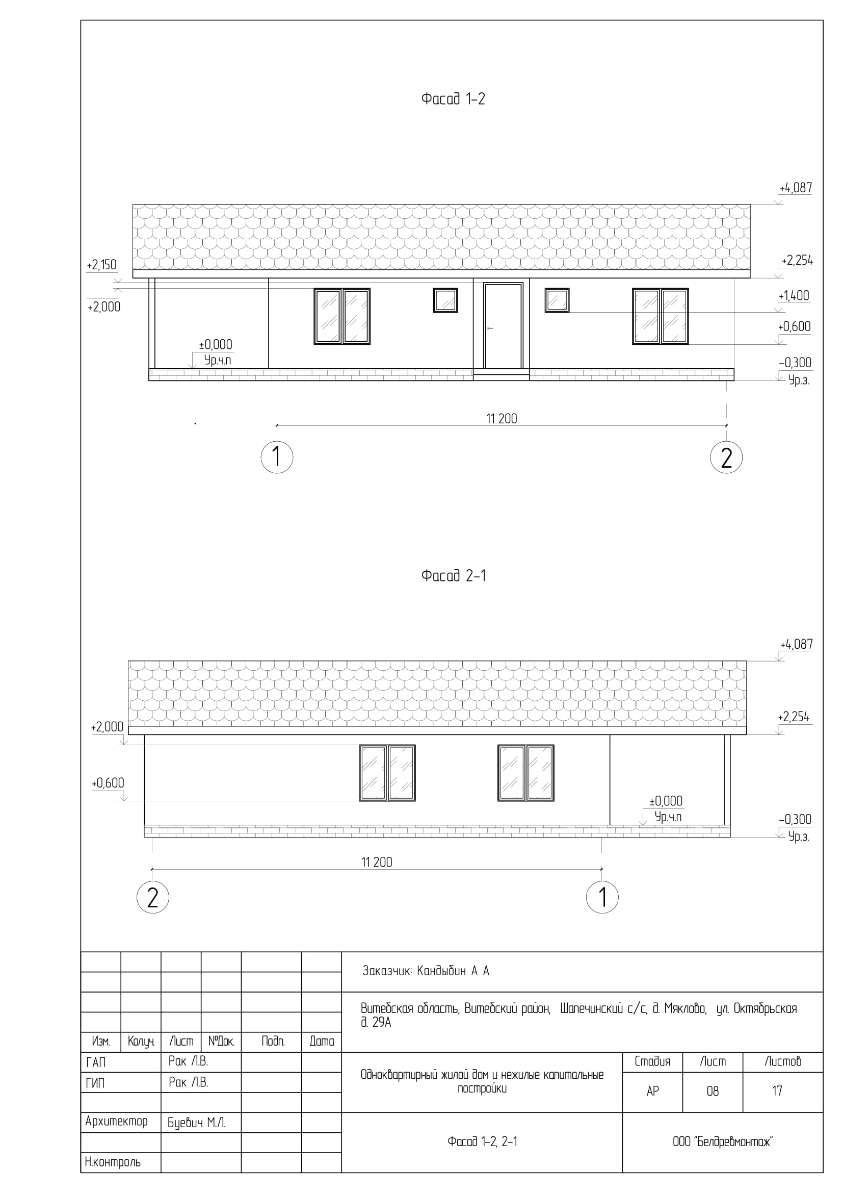
Архитектурный проект дома 9х11,5

Используемые навыки:

Описание

Архитектурный проект дома из газосиликатных блоков с террасой.

Презентация проекта

pic4135820.jpg
Лист 8-1.jpg

Оценили проект:

0