Я не разделяю архитектуру и дизайн, для меня это единое целое

Буевич Максим maksekost80

Рейтинг: 128
не верифицирован
Всего отзывов: 3 0
Выполнил заданий: 3
  • Работ в портфолио: 23
  • Типовых услуг: 0
  • Работ на продажу: 3
  • Возраст: 45 лет
  • Зарегистрирован: 07.07.2019
Был на сайте:

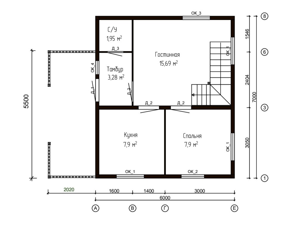
Каркасный дом 6х7

Используемые навыки:

Описание

Проект каркасного дома 6х7 с мансардным этажом и топочной.

Презентация проекта

pic3861990.jpg
1-ый этаж (pdf.io).jpg

Оценили проект:

0