Я не разделяю архитектуру и дизайн, для меня это единое целое

Буевич Максим maksekost80

Рейтинг: 128
не верифицирован
Всего отзывов: 3 0
Выполнил заданий: 3
  • Работ в портфолио: 23
  • Типовых услуг: 0
  • Работ на продажу: 3
  • Возраст: 45 лет
  • Зарегистрирован: 07.07.2019
Был на сайте:

Архитектурный проект дома 9х13

Используемые навыки:

Описание

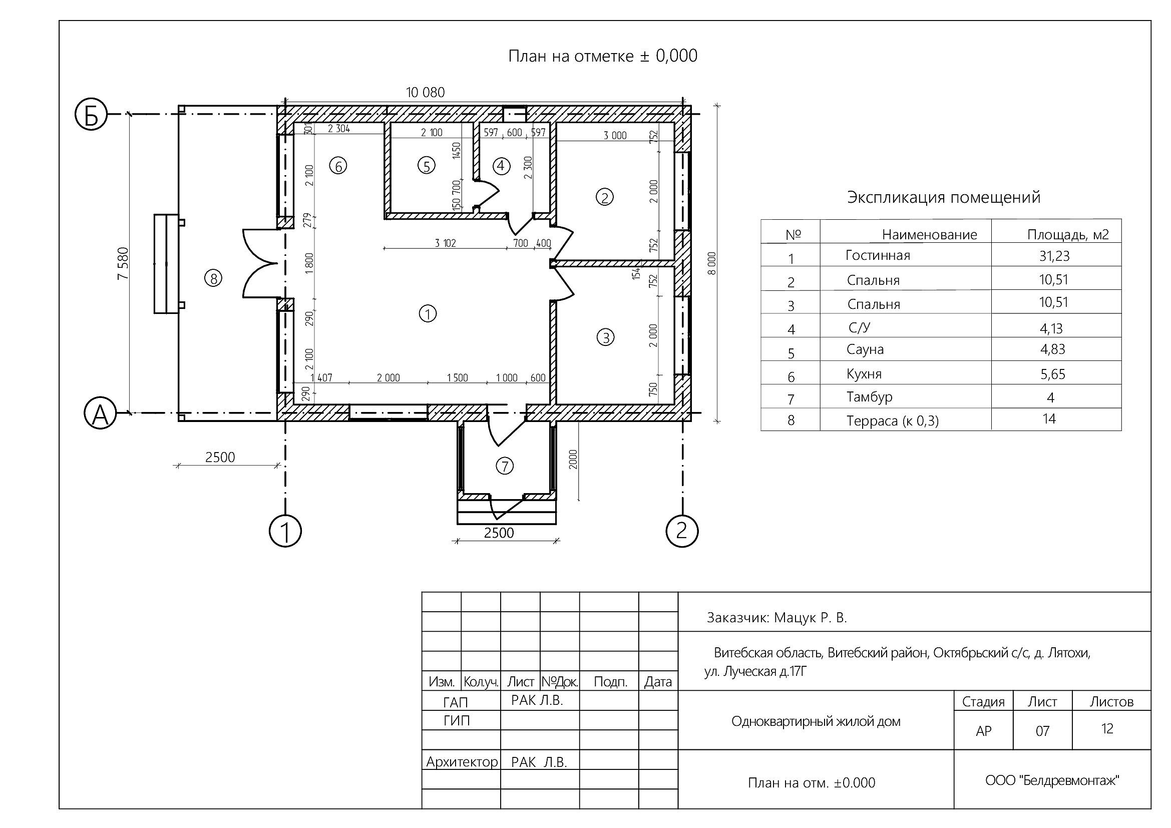
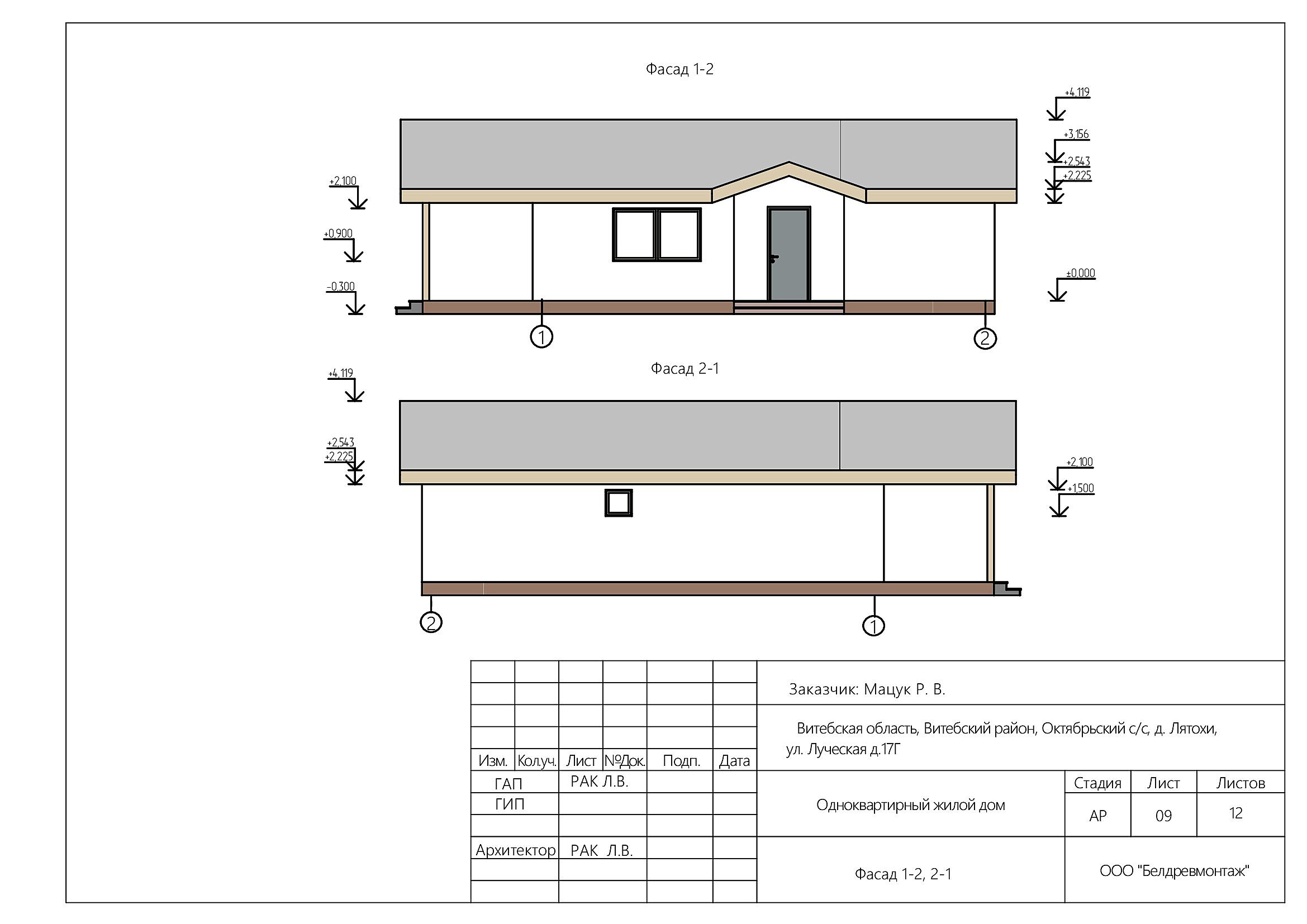
Архитектурный проект блочного дома 9Х13. В доме расположено 2 спальни, с/у с сауной и кухня гостинная

Презентация проекта

pic4228322.jpg
проект блочного дома 8х13_00004.jpg
проект блочного дома 8х13_00009.jpg
проект блочного дома 8х13_00011.jpg
проект блочного дома 8х13_00012.jpg

Оценили проект:

0