Самое главное - не экономить на фундаменте и крыше!

Андрей Ерастов erikbond

Рейтинг: 93
не верифицирован
Всего отзывов: 0
  • Работ в портфолио: 23
  • Типовых услуг: 0
  • Работ на продажу: 0
Был на сайте:

Жилой деревянный дом с баней (детально)

Используемые навыки:

Описание

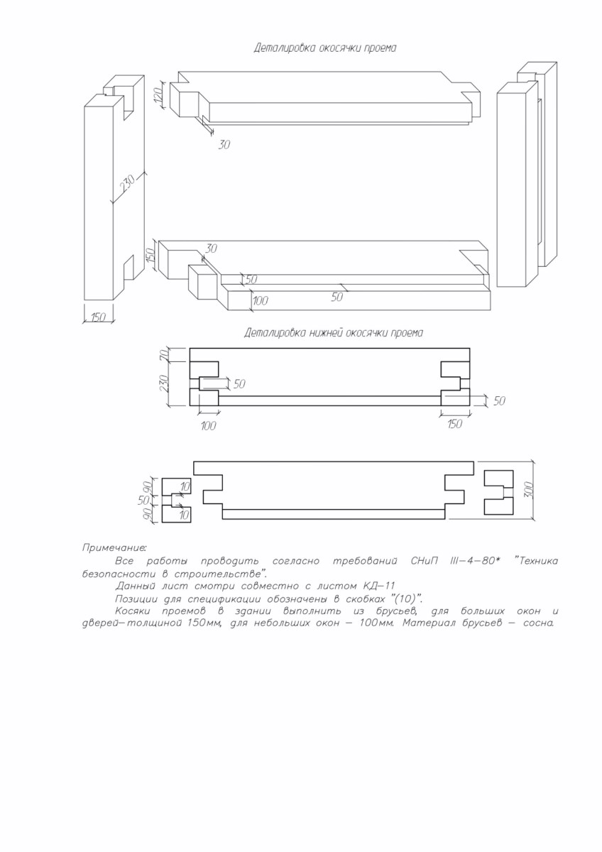
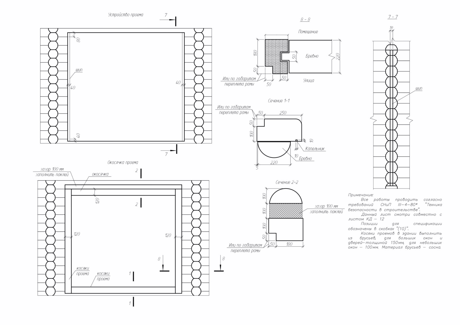
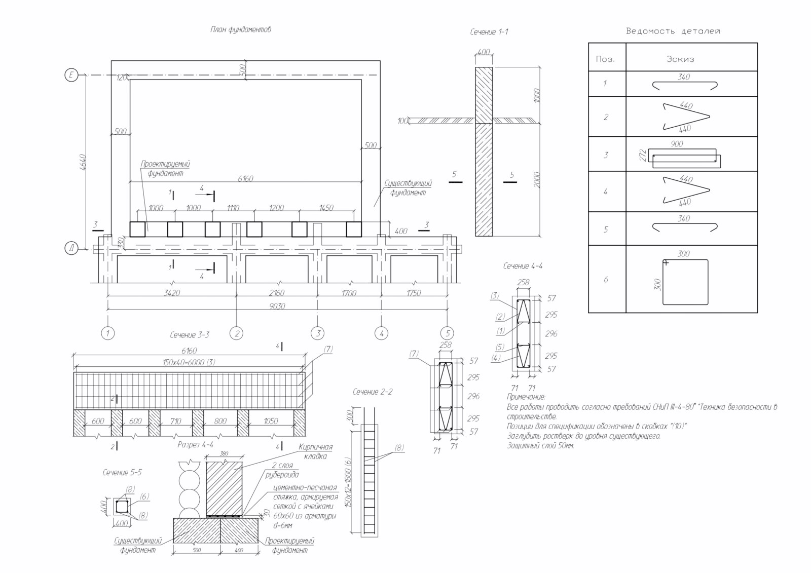
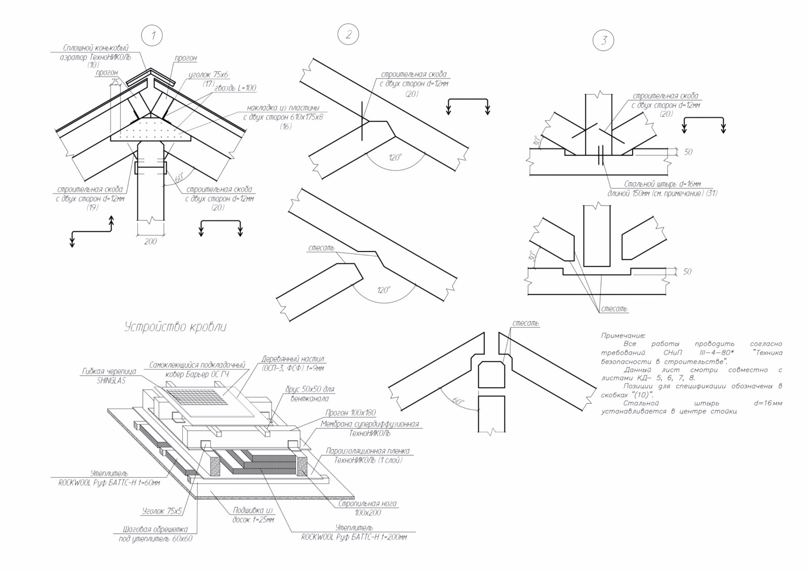
Проект был детально разобран, вплоть до окосячки.

Презентация проекта

pic2374238.jpg
image-0008.jpg
image-0010.jpg
image-0011.jpg
image-0013.jpg
image-0014.jpg
image-0018.jpg
image-0024.jpg
image-0033.jpg

Оценили проект:

0