Самое главное - не экономить на фундаменте и крыше!

Андрей Ерастов erikbond

Рейтинг: 93
не верифицирован
Всего отзывов: 0
  • Работ в портфолио: 23
  • Типовых услуг: 0
  • Работ на продажу: 0
Был на сайте:

3-х этажный коттедж

Используемые навыки:

Описание

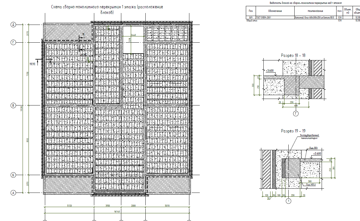
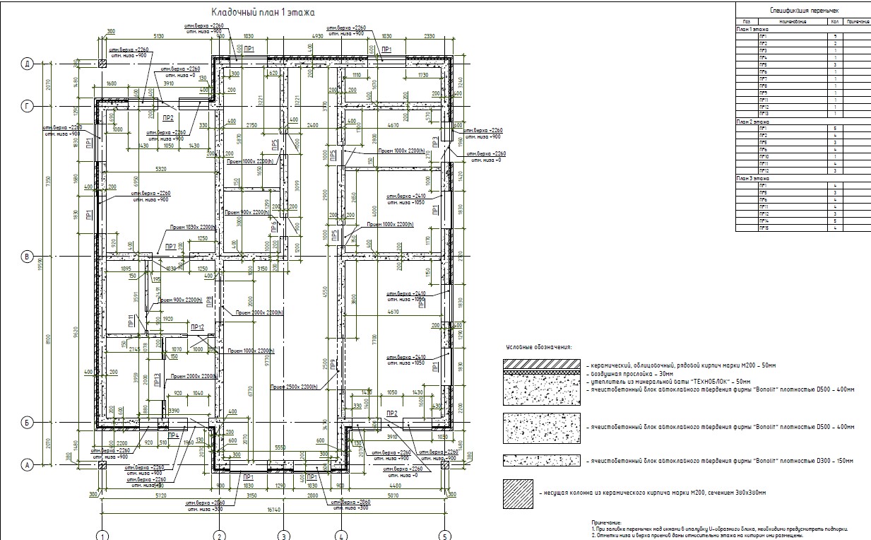
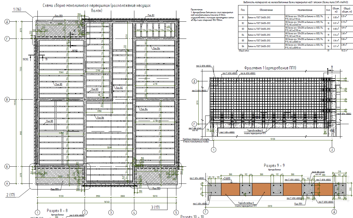
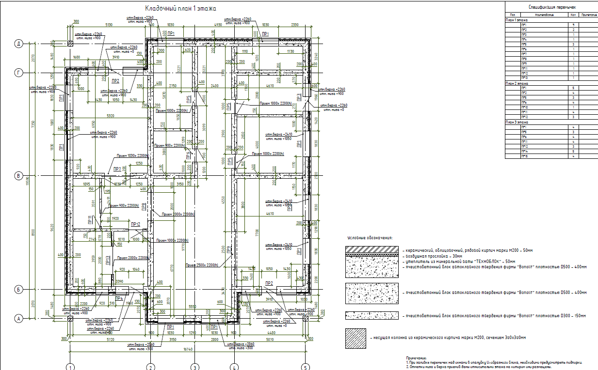
3-х этажный коттедж собранный в REVIT. Создавались индивидуальные семейства сборно-монолитного перекрытия из газобетона.

Презентация проекта

pic3708016.jpg
006 3-х этажный коттедж 1.png
006 3-х этажный коттедж 2.png
006 3-х этажный коттедж 4.png
006 3-х этажный коттедж 3.png
006 3-х этажный коттедж 5.png
006 3-х этажный коттедж 6.png
006 3-х этажный коттедж 7.png

Оценили проект:

0