Самое главное - не экономить на фундаменте и крыше!

Андрей Ерастов erikbond

Рейтинг: 93
не верифицирован
Всего отзывов: 0
  • Работ в портфолио: 23
  • Типовых услуг: 0
  • Работ на продажу: 0
Был на сайте:

Коттедж в городе

Используемые навыки:

Описание

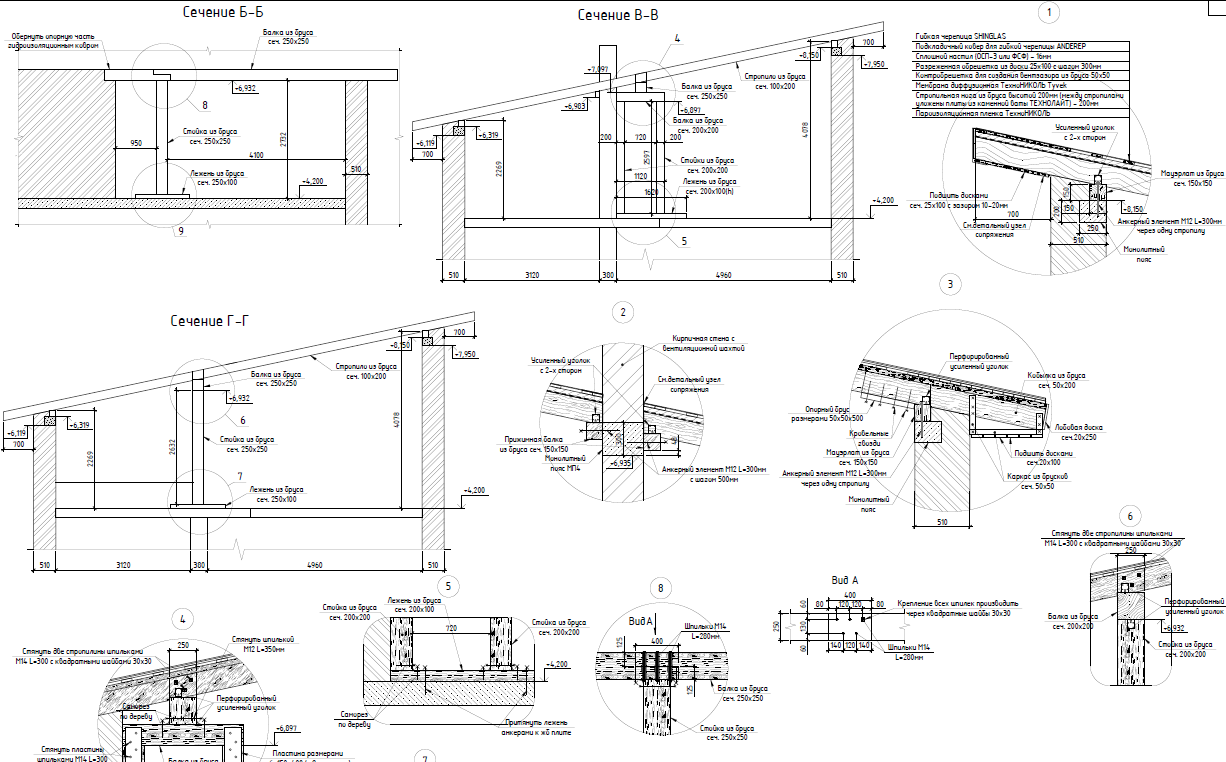
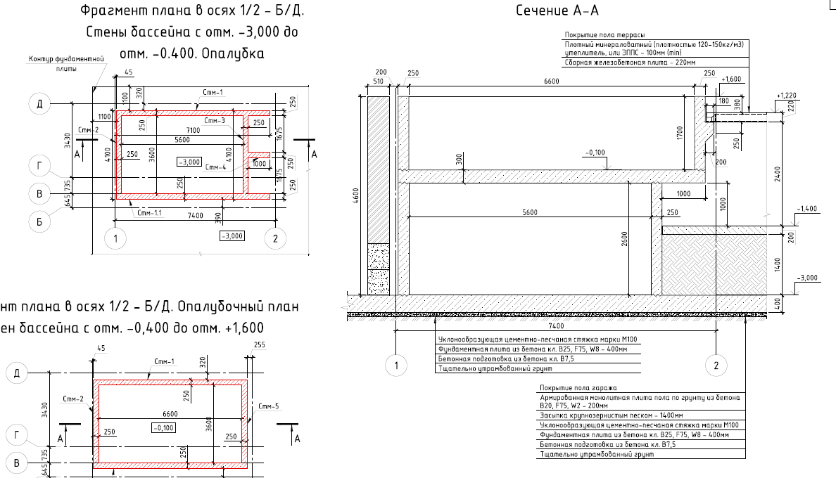
Кирпичный коттедж в городе с бассейном в монолите. Сделано в Автокаде. Объемы собраны из REVIT.

Презентация проекта

pic3708013.jpg
005 Коттедж в городе 2.png
005 Коттедж в городе 3.png
005 Коттедж в городе 4.png
005 Коттедж в городе 5.png
005 Коттедж в городе 6.png
005 Коттедж в городе 7.png
005 Коттедж в городе 8.png
005 Коттедж в городе 9.png
005 Коттедж в городе 10.png
005 Коттедж в городе 11.png

Оценили проект:

0