Рейтинг: 1 420
Верифицирован через Сбер ID
Всего отзывов: 0
  • Работ в портфолио: 8
  • Типовых услуг: 2
  • Работ на продажу: 0
  • Возраст: 28 лет
  • Стаж работы: 6 лет
  • Зарегистрирован: 16.03.2025
  • Образование: Магистратура
  • Юридический статус:Самозанятый
Был на сайте:

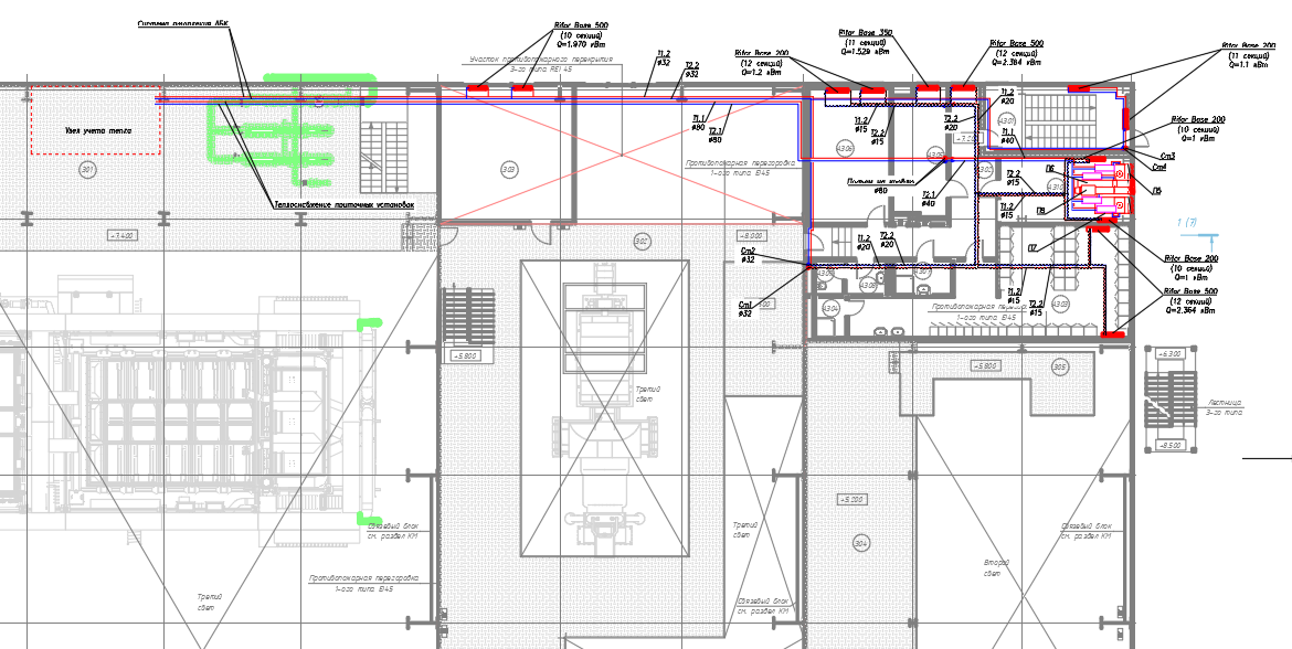
Проект систем ОВиК здания ТЭС с пристроенным АБК

Описание

Требовалось разработать ПД по системам отопления вентиляции и кондиционирования.

Решение

Проект выполнен в автокаде, расчет выполнялся по тепловым избыткам, нормируемым кратностям и данным от разработчика ТХ

Презентация проекта

1000007366.png
1000007365.png
1000007364.png
1000007367.png

Оценили проект:

0