Рейтинг: 1 420
Верифицирован через Сбер ID
Всего отзывов: 0
  • Работ в портфолио: 8
  • Типовых услуг: 2
  • Работ на продажу: 0
  • Возраст: 28 лет
  • Стаж работы: 6 лет
  • Зарегистрирован: 16.03.2025
  • Образование: Магистратура
  • Юридический статус:Самозанятый
Был на сайте:

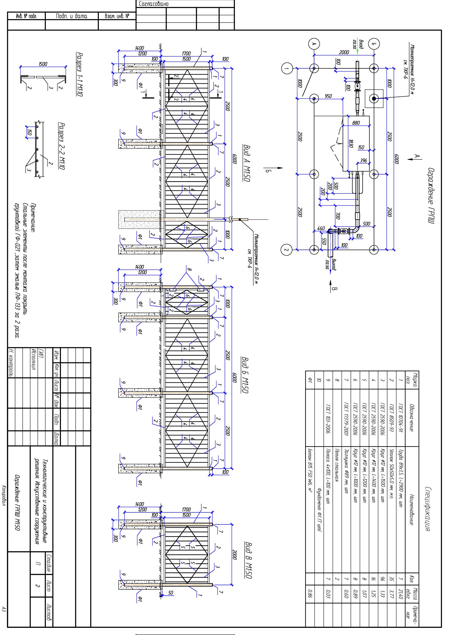
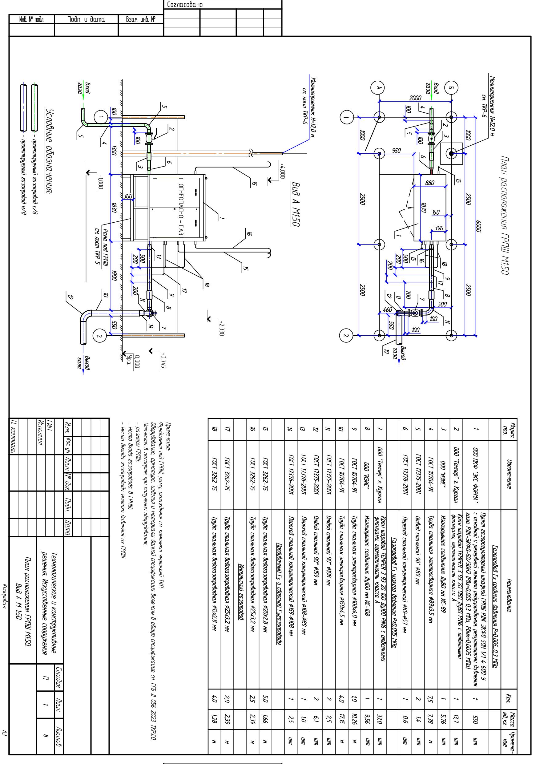
Проект газопровода до границы земельного участка с установкой ГРПШ

Используемые навыки:

Описание

Необходимо было сделать проект газопровода-ввода до границы земельного участка, точка врезки дана от газопровода среднего давления, поэтому требовалась установка ГРПШ, к ней нужно было рассчитать молниезащиту и заземление.

Презентация проекта

ГРПШ1.jpg
грпш1.1.jpg
ГРПШ2.jpg
грпш3.jpg
грпш4.jpg
грпш5.jpg
грпш6.jpg
грпш7.jpg

Оценили проект:

0