Рейтинг: 387
не верифицирован
Всего отзывов: 0
  • Работ в портфолио: 5
  • Типовых услуг: 0
  • Работ на продажу: 0
  • Возраст: 40 лет
  • Стаж работы: 16 лет
  • Зарегистрирован: 20.04.2022
  • Образование: Бакалавриат
Был на сайте:

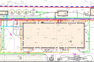
Проект организации строительства полигона промышленных отходов для ЛАЭС-2

Описание

Разработка проекта организации строительства полигона промышленных отходов для ЛАЭС-2, его административно-хозяйственной инфраструктуры и подъездной дороги к нему

Презентация проекта

ПОС-1.jpg
ПОС-2.jpg
ПОС-3.jpg

Оценили проект:

0