Рейтинг: 387
не верифицирован
Всего отзывов: 0
  • Работ в портфолио: 5
  • Типовых услуг: 0
  • Работ на продажу: 0
  • Возраст: 40 лет
  • Стаж работы: 16 лет
  • Зарегистрирован: 20.04.2022
  • Образование: Бакалавриат
Был на сайте:

Разработка проекта кран-балки г/п 6,3т и подкрановой эстакады в существующем здании цеха по ремонту трансформаторов

Описание

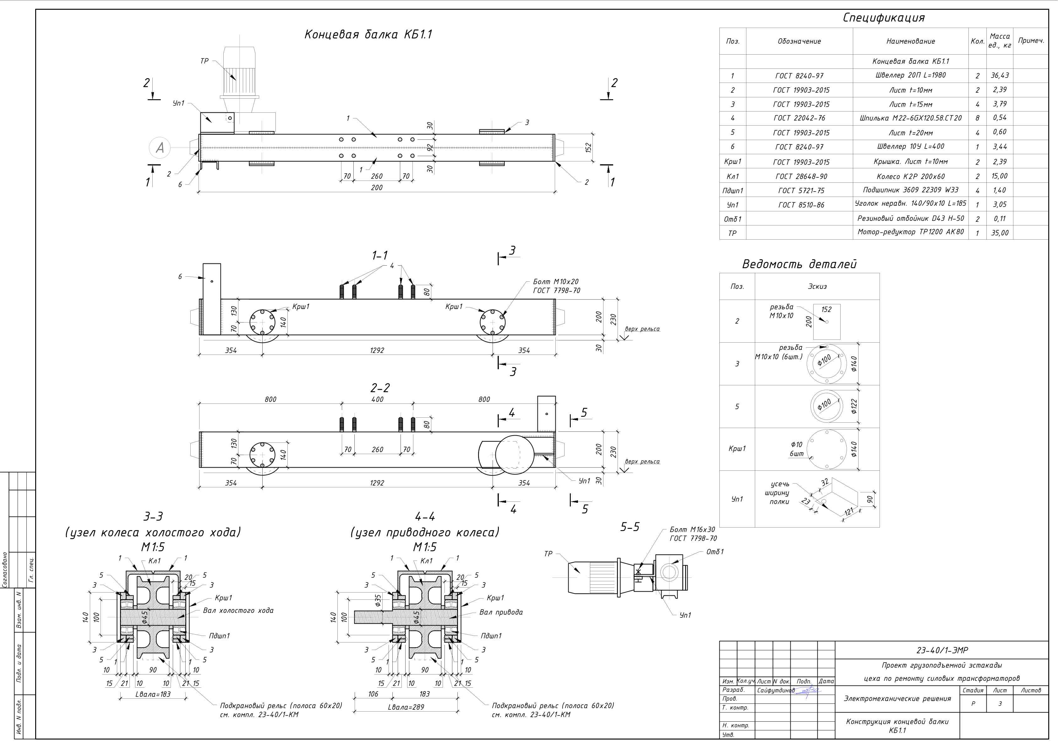
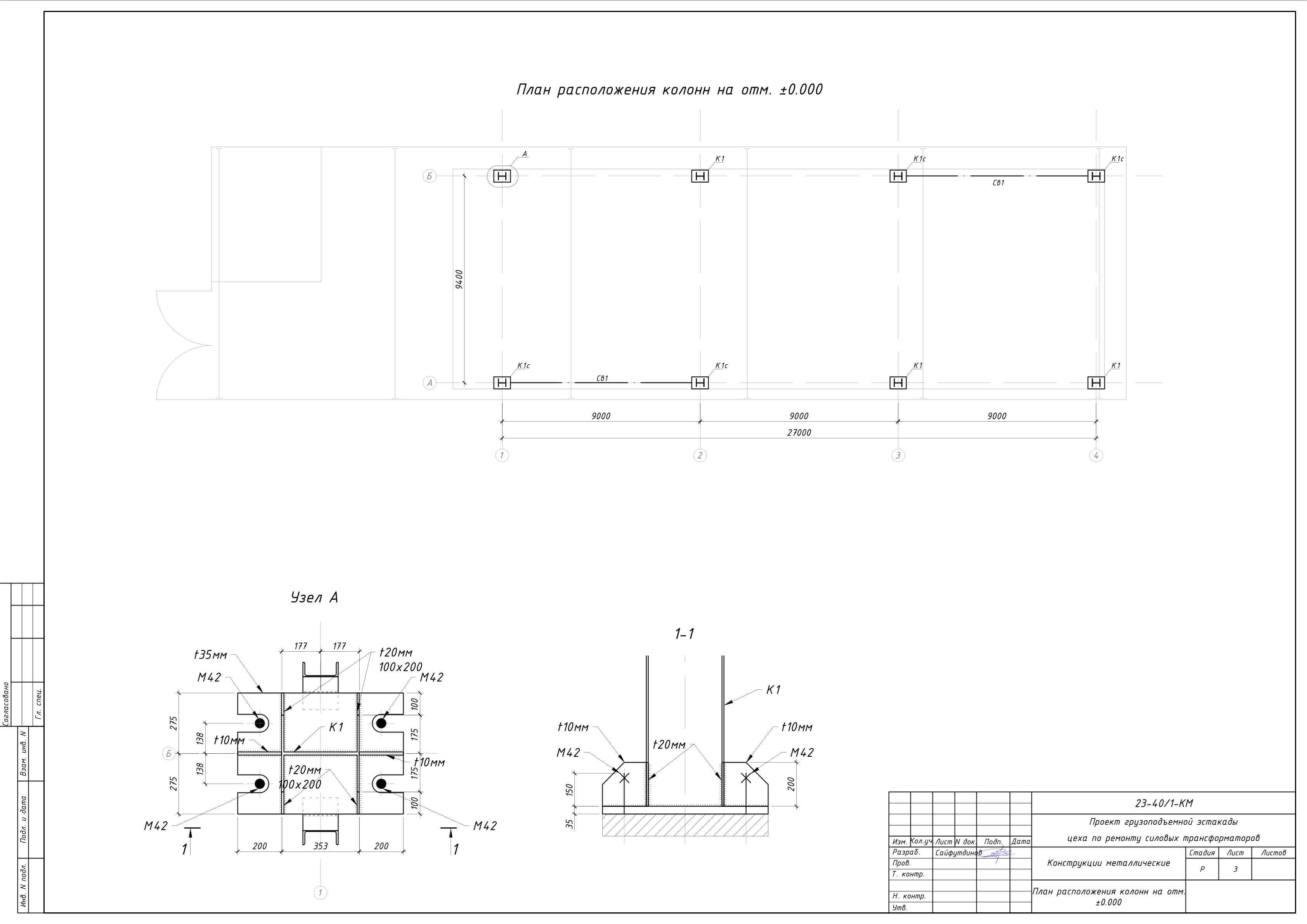
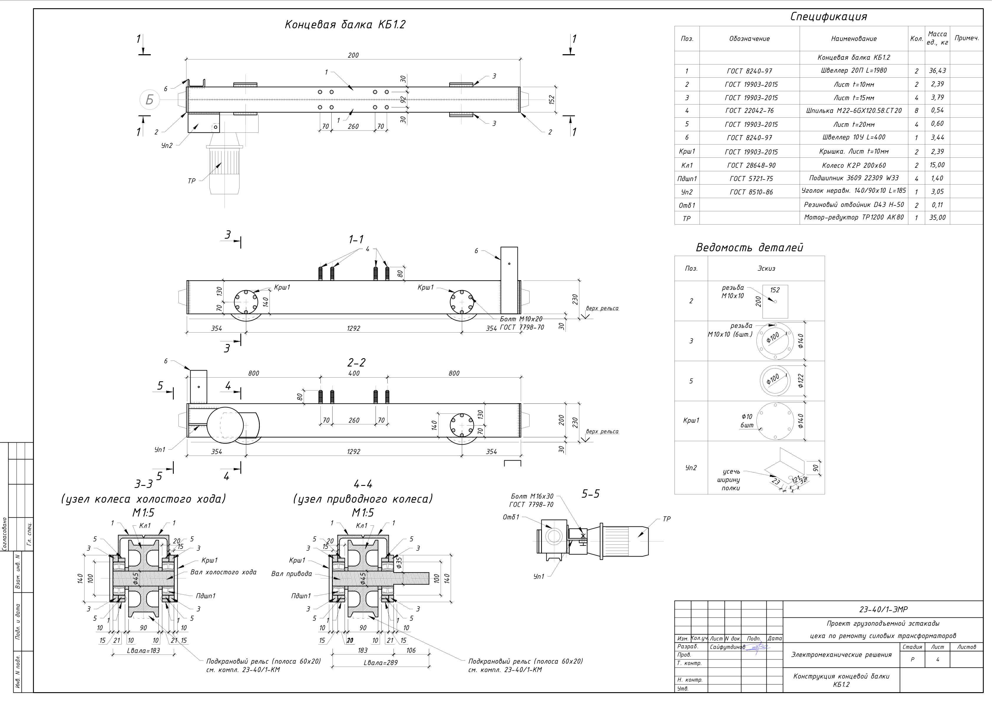
Разработка полного комплекта рабочих чертежей для устройства в существующем здании кран-балки 6,3, включающие устройство фундаментов (КЖ), подкрановой эстакады (КМ) и самой кран-балки (ЭМР)

Решение

С учётом имеющихся предельных габаритов внутри существующего здания был разработан каркас кран-балки и подкрановой эстакады, способных иметь грузоподъёмность 6,3 тонны. Исходя из массогабаритных характеристик конструкции были запроектированы столбчатые фундаменты под колонны эстакады.

Презентация проекта

КЖ (2).jpg
КЖ (3).jpg
КМ (1).jpg
КМ (2).jpg
КМ (3).jpg
КМ (4).jpg
ЭМР (2).jpg
ЭМР (3).jpg
ЭМР (4).jpg
ЭМР (5).jpg

Оценили проект:

0