Рейтинг: 387
не верифицирован
Всего отзывов: 0
  • Работ в портфолио: 5
  • Типовых услуг: 0
  • Работ на продажу: 0
  • Возраст: 40 лет
  • Стаж работы: 16 лет
  • Зарегистрирован: 20.04.2022
  • Образование: Бакалавриат
Был на сайте:

Разработка рабочего проекта отопления и вентиляции для здания автомастерской

Описание

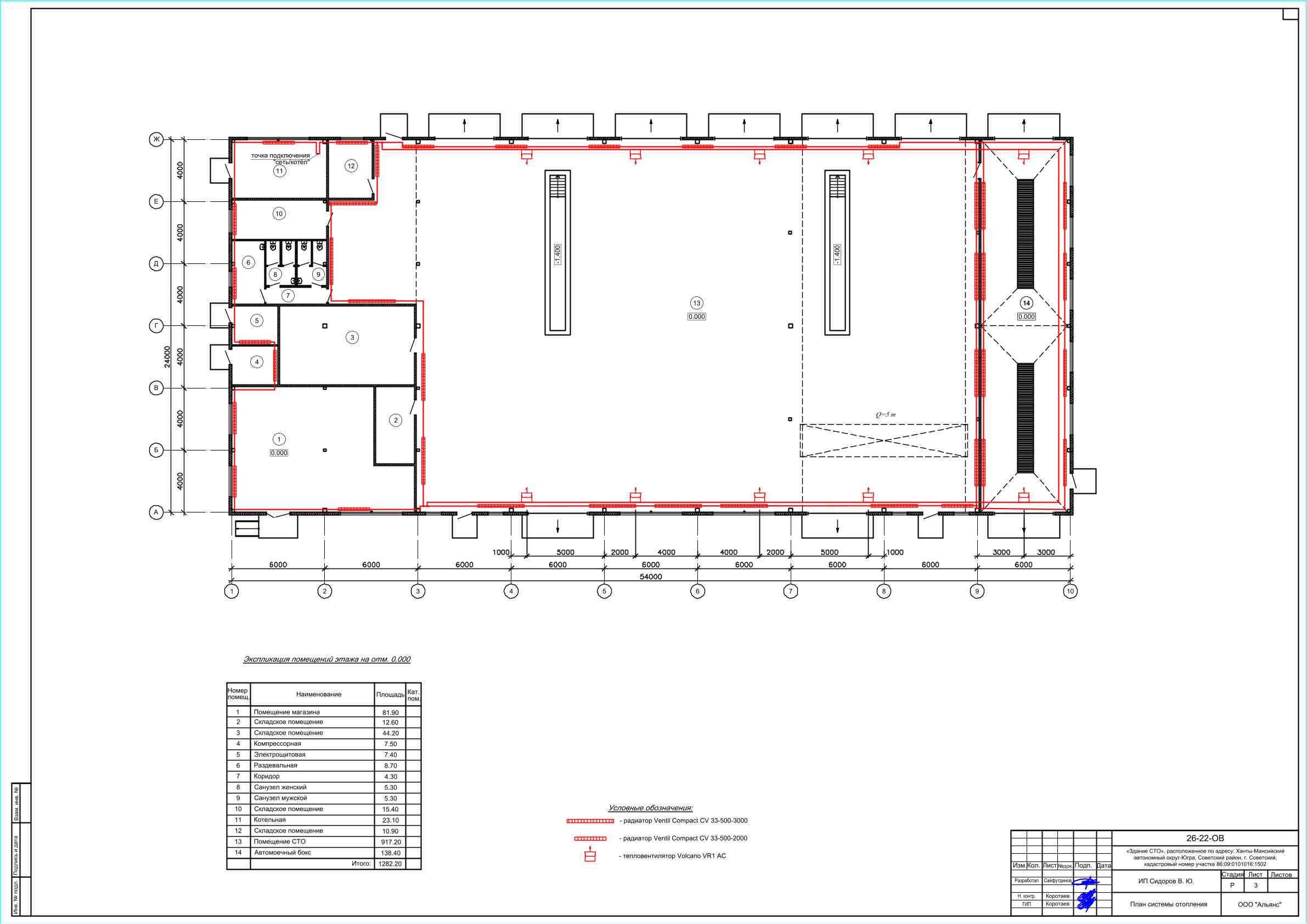
Разработка рабочих чертежей систем отопления и вентиляции для здания автосервиса на основе архитектурных чертежей, ТЗ заказчика под конкретные конвекторы Vulcano и с учётом климатических характеристик региона (ХМАО)

Презентация проекта

ОВ (1).jpg
ОВ (2).jpg
ОВ (3).jpg
ОВ (4).jpg
ОВ (5).jpg
ОВ (6).jpg
ОВ (7).jpg
ОВ (8).jpg
ОВ (9).jpg
ОВ (10).jpg

Оценили проект:

0