Рейтинг: 310
Верифицирован через Сбер ID
Всего отзывов: 0
  • Работ в портфолио: 6
  • Типовых услуг: 0
  • Работ на продажу: 0
  • Возраст: 23 года
  • Стаж работы: 2 года
  • Зарегистрирован: 05.11.2025
  • Образование: Среднее профессиональное
  • Юридический статус:Самозанятый
Был на сайте:

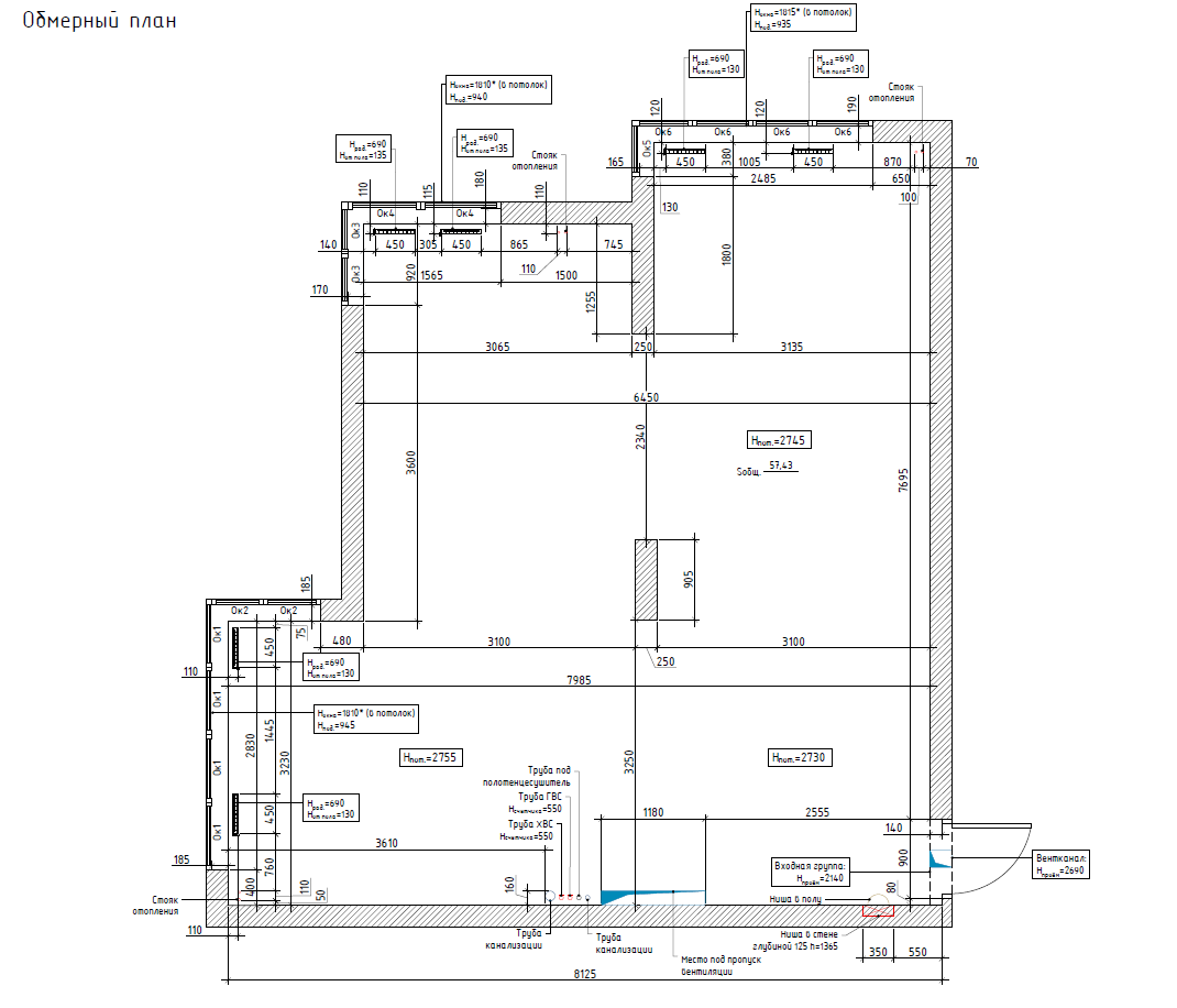
Рабочая документация ремонта квартиры 55 м2

Описание

Новостройка, бетон без ремонта и голые коммуникации)
Задача ясна. Удобный и стильный дизайн под нужды заказчика.

Решение

Долго прорабатывали цветовые решения, долго подбирали керамогранит, но результат того стоил.

Результат

Уверен, заказчица довольна своей квартирой и уже живёт в реализованном проекте по своей задумке, в которой принимала непосредственное участие))

Работа выполнена в соавторстве

С дизайнером интерьера, разработавшем концепцию.

Презентация проекта

Acrobat_OCvNBa2xoR.png
Acrobat_5I9BeqF2vE.png
Acrobat_vCQE02s25x.png
Acrobat_xSry8ZK3Ym.png
Acrobat_xWmVQvz510.png
Acrobat_HIJzuFl1RL.png
Acrobat_ssQselD4aR.png
Acrobat_HozbbXnAxS.png
Acrobat_UzOw9XAHHV.png
Acrobat_nIvnsiZfVG.png

Оценили проект:

0