Рейтинг: 310
Верифицирован через Сбер ID
Всего отзывов: 0
  • Работ в портфолио: 6
  • Типовых услуг: 0
  • Работ на продажу: 0
  • Возраст: 23 года
  • Стаж работы: 2 года
  • Зарегистрирован: 05.11.2025
  • Образование: Среднее профессиональное
  • Юридический статус:Самозанятый
Был на сайте:

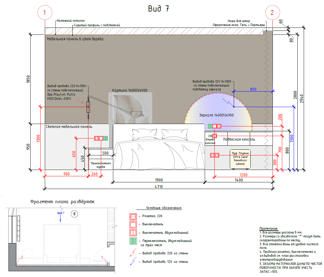
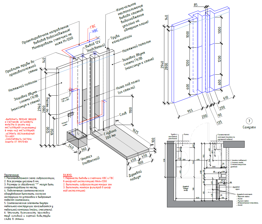
Рабочая документация ремонта квартиры 65 м2

Описание

Стояла задача создать удобное пространство для проживания 2-их человек, с вариантом появления ребёнка.

Решение

Из простого помещения с колонной посередине была спроектирована наиболее комфортная планировка для заказчика, сохраняющая как дизайн-концепцию, так и удобное расположение всей мебели в доме.

Результат

Заказчику понравилось, проект получился достаточно подробным, чтобы строители ничего не упустили и наглядно всё увидели.

Работа выполнена в соавторстве

Дизайнер составила дизайн-концепцию.

Презентация проекта

Acrobat_vs5AZ08XfR.png
Acrobat_Qsqi3gLkXk.png
Acrobat_e3KjBfpqJw.png
Acrobat_Udo4bBTmAn.png
Acrobat_TPKlVZg3nd.png
Acrobat_jZlEdx1eOf.png
Acrobat_Bfeo8wXo6g.png
Acrobat_EEnZ4jRsdR.png
Acrobat_b8PKRUvpGr.png
Acrobat_UJzmnmcjsD.png

Оценили проект:

0