Рейтинг: 310
Верифицирован через Сбер ID
Всего отзывов: 0
  • Работ в портфолио: 6
  • Типовых услуг: 0
  • Работ на продажу: 0
  • Возраст: 23 года
  • Стаж работы: 2 года
  • Зарегистрирован: 05.11.2025
  • Образование: Среднее профессиональное
  • Юридический статус:Самозанятый
Был на сайте:

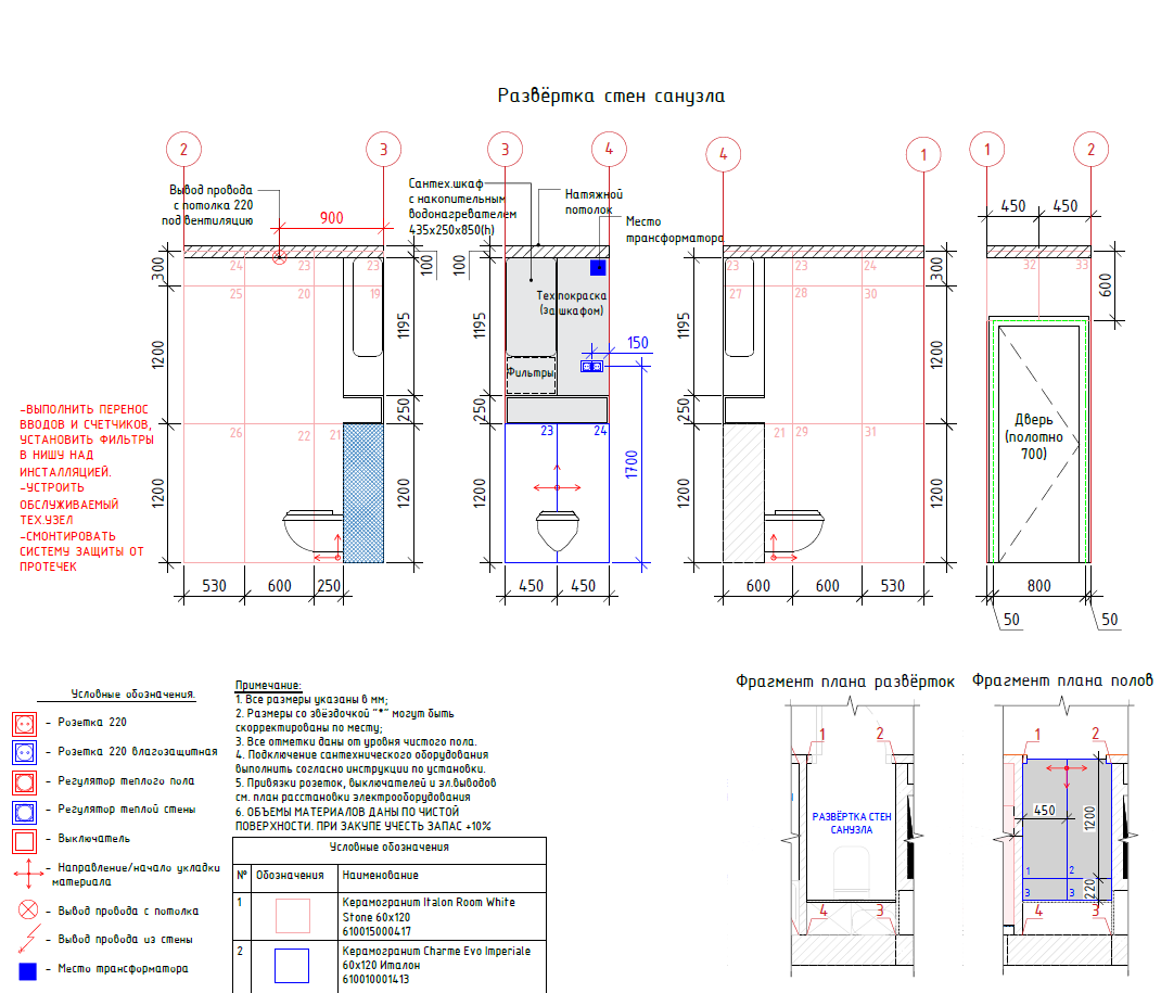
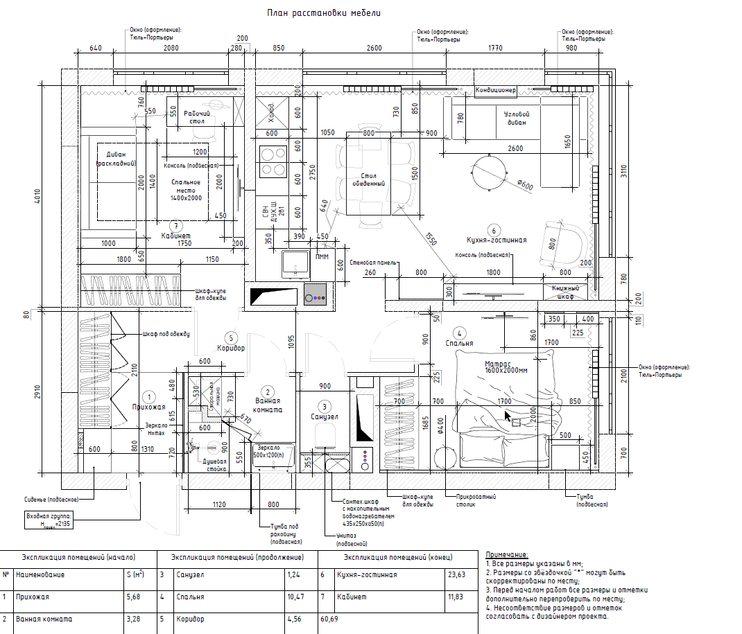
Рабочая документация ремонта квартиры 60 м2

Описание

Данная квартира уже заранее была с возведенными стенами, требовалась лишь небольшая перепланировка санузла и совмещение пространств кухни и гостиной.

Решение

Квартира получилась очень хороша по дизайн-исполнению. Рабочая документация соблюла дизайнерскую задумку полностью.

Результат

Заказчики довольны. Сделали ремонт и живут в своём новом, уютном и комфортном пространстве.

Работа выполнена в соавторстве

Дизайнер составил дизайн-концепцию.

Презентация проекта

Acrobat_FsZXln282K.png
Acrobat_wcEv4AvcgP.png
Acrobat_uJR8N81ijA.png
Acrobat_9pYgTEuyAU.png
Acrobat_Og2giS1vVG.png
Acrobat_mSemxUM86H.png
Acrobat_sb67PVeOb4.png
Acrobat_tO5jMQBwxQ.png

Оценили проект:

0