Рейтинг: 310
Верифицирован через Сбер ID
Всего отзывов: 0
  • Работ в портфолио: 6
  • Типовых услуг: 0
  • Работ на продажу: 0
  • Возраст: 23 года
  • Стаж работы: 2 года
  • Зарегистрирован: 05.11.2025
  • Образование: Среднее профессиональное
  • Юридический статус:Самозанятый
Был на сайте:

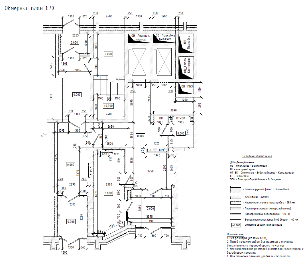
Рабочая документация ремонта общественного пространства жилого дома на 175 м2

Описание

Заказ на дизайн поступил от иногороднего застройщика, без возможности восприятия пространства лично, так же ввиду того, что здание было еще на стадии разработки проекта. Но это абсолютно никогда не мешает оформить дизайн-концепцию, согласовать визуализации и сделать рабочую документацию, подробно и в срок)

Решение

Ничего сложного, главное посчитать правильно всё объёмы. Особенно керамогранит.

Результат

Проект первого этажа с входными группами, зоной ожидания, колясочной и лифтовой зоной получился действительно неплохим в цветовом и концептуальном смысле. Дизайнер постаралась над цветами и задумкой, соответствующей стилю жилого комплекса. А я уже реализовал конструктивную составляющую для удобной работы мастеров.

Работа выполнена в соавторстве

С дизайнером интерьера, создавшем дизайн-концепцию.

Презентация проекта

Acrobat_Ms7ZT2fgI8.png
Acrobat_mQxdsqjCZg.png
Acrobat_mnB1l589Zh.png
Acrobat_HRE3uCzmug.png
Acrobat_FUW0y7yhhO.png
Acrobat_RL4ZDaQbVi.png
Acrobat_7kMcNJCcao.png
Acrobat_cdebRs7xz1.png
Acrobat_6osrqodTLH.png
Acrobat_wugUdjFk7n.png

Оценили проект:

0