Top 10
Рейтинг: 4 175
Паспорт верифицирован
Всего отзывов: 7 0
Профессионализм: 10 Коммуникация: 10
Выполнил заданий: 6
  • Работ в портфолио: 25
  • Типовых услуг: 4
  • Работ на продажу: 0
  • Стаж работы: 3 года
  • Зарегистрирован: 24.07.2024
  • Образование: Cпециалитет
  • Юридический статус:Частное лицо
Был на сайте:

Услуга проектной документации

Описание

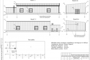
Услуга: отрисовка планов домов и прочих объектов

Я предлагаю профессиональную услугу по созданию детальных планов домов и других объектов. Я имею большой опыт работы в этой сфере и используют современные инструменты и технологии для создания точных и качественных чертежей.

Что я делаю:
-разрабатываем планы с учётом всех архитектурных особенностей и требований заказчика;
- выполняю отрисовку планов перепланировок;

Если вам нужен детальный план дома или другого объекта, обратитесь, и я с радостью помогу вам.

Ссылки на примеры реализации

 disk.yandex.ru/d/Ees9dvCUF7oebg

Презентация проекта

_storage_emulated_0_Android_data_com.adobe.reader_files_Pictures
_storage_emulated_0_Android_data_com.adobe.reader_files_Pictures
_storage_emulated_0_Android_data_com.adobe.reader_files_Pictures
_storage_emulated_0_Android_data_com.adobe.reader_files_Pictures
_storage_emulated_0_Android_data_com.adobe.reader_files_Pictures
_storage_emulated_0_Android_data_com.adobe.reader_files_Pictures
_storage_emulated_0_Android_data_com.adobe.reader_files_Pictures

Оценили проект:

0