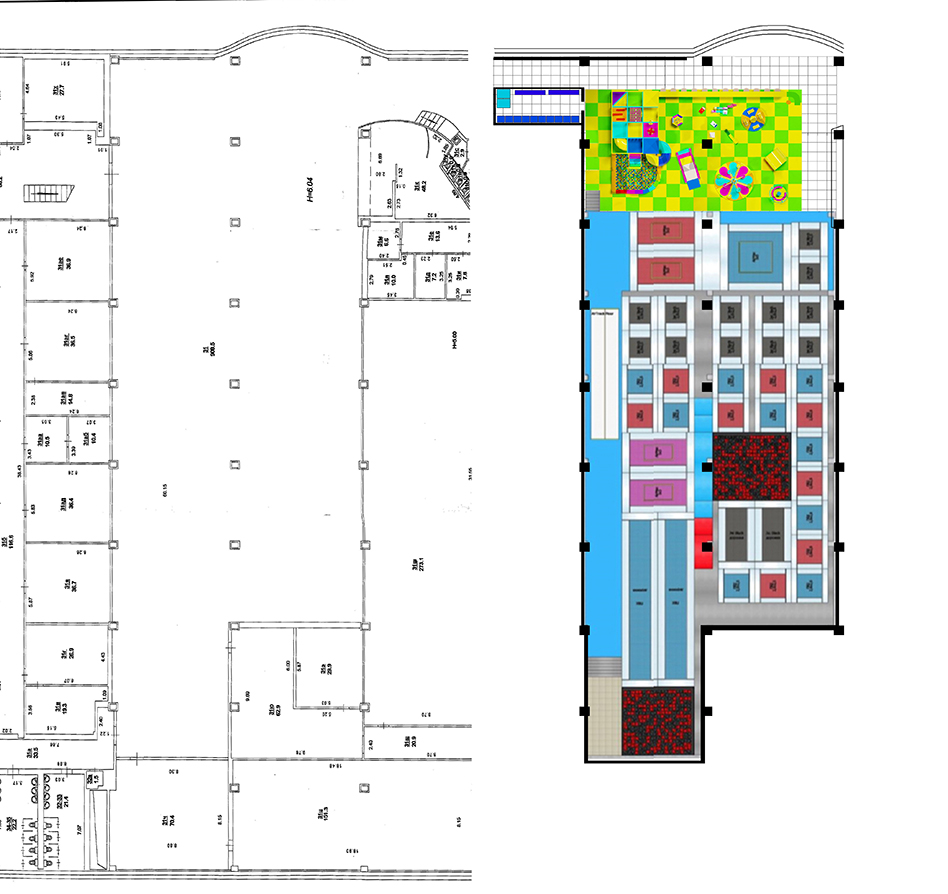
План расстановки и визуализация детских аттракционов в ТЦ 2
Для полной функциональности этого сайта необходимо включить JavaScript.
Городок
На сайте с: 19.03.2017
3Д Визуализация l чертежи-схемы l tg @Ruf_Ai
Руфат А
web-make
Рейтинг: 628
не верифицирован
Всего отзывов:
5
0
Выполнил заданий:
7
Нейросаммари
Работ в портфолио:
156
Типовых услуг:
0
Работ на продажу:
0
Был на сайте:
2025-12-16 в 05:57
inbox
telegram
Предложить работу
Добавить в избранное
Добавить рекомендацию
Пожаловаться
Инженерия
29
0
План расстановки и визуализация детских аттракционов в ТЦ 2
Используемые навыки:
Проектирование объектов
Описание
Решение
Результат
Соавторы
Презентация проекта
Примеры реализации
Описание
Презентация проекта
Оценили проект:
0
×
Оценили проект
×
Авторизация
Для того чтобы оценивать проекты, вам нужно войти на сайт
Другие проекты
Все проекты
Визуализация мебели офисного помещения
Чертежи для производства мебели 2
Работа 3604431
FREELANCE.RU
Toggle navigation
Нанять фрилансера
Заказчику
Найти по специализации
Найти по услугам
Провести конкурс
Разместить задание
Другое
Найти работу
Фрилансеру
Найти задание
Присоединиться к команде
Участвовать в конкурсе
Другое
Возможности
Для заказчика
Для фрилансера
Вход
Разместить задание
▲